Siège de la Fondation Mons 2015 (le 106)
Bureaux
2011 - 2013
2011 - 2013
2011 - 2013
2011 - 2013
2011 - 2013
2011 - 2013
2011 - 2013
Réalisé
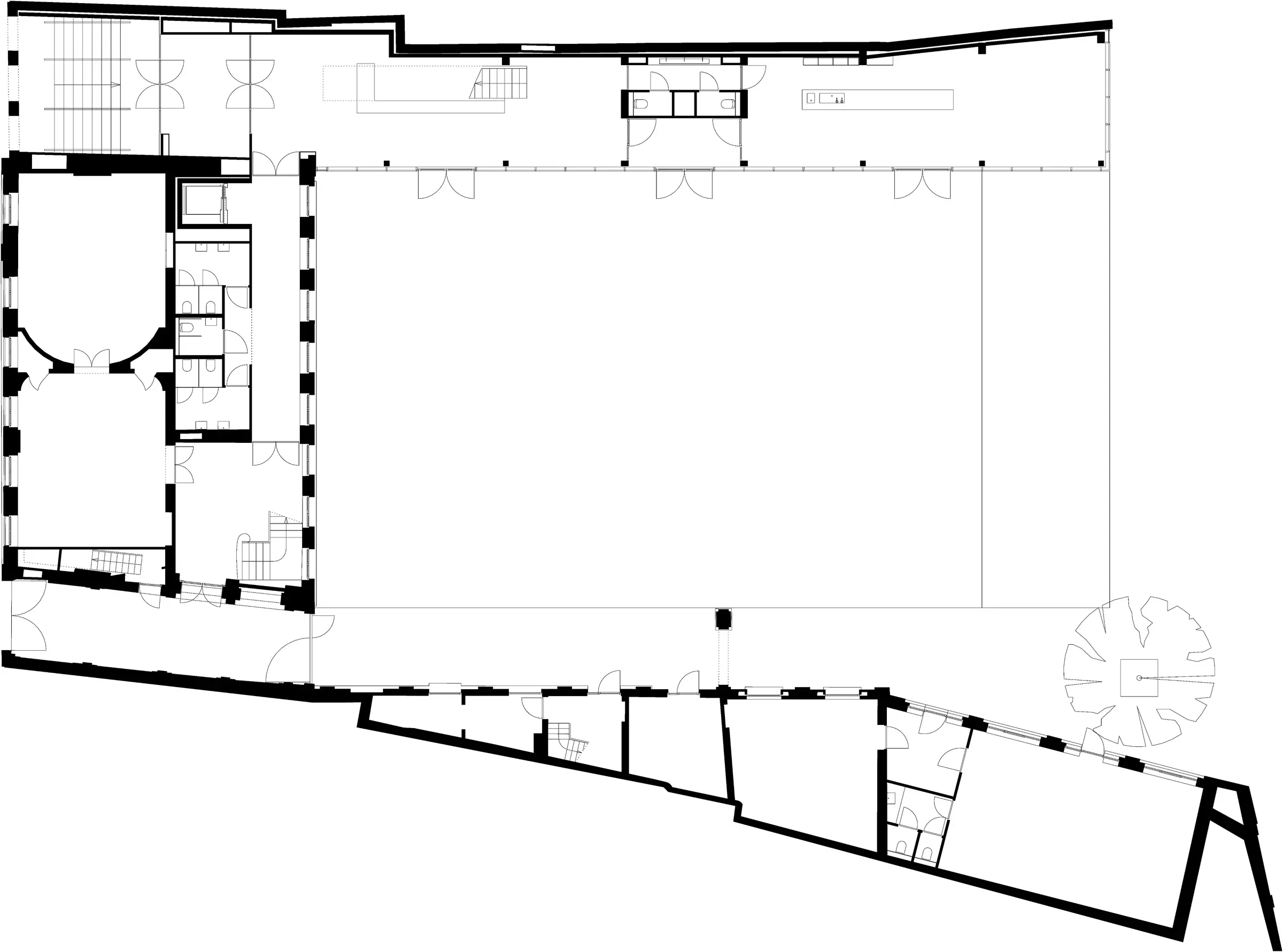
Situé entre deux voiries importantes du centre-ville, l'ancien bâtiment de l'Académie des Beaux-Arts (dit « le 106 ») est devenu le centre opératif de la promotion et de la production des événements de « Mons 2015, Capitale européenne de la culture ».
L'inscription de ce nouveau lieu de rencontre, de passage, de création et d'enseignement dans le tissu urbain permet de connecter l'axe historique du centre-ville médiéval avec le nouveau quartier de la Tour valenciennoise. Le projet comporte deux volets : d'une part, la conservation et la rénovation des bâtiments à caractère patrimonial situés dans la rue de Nimy et, d'autre part, la construction d'un volume contemporain, clair et lisible à l'emplacement de l'ancienne aile nord, située à l'intérieur de la cour.
L'entrée cochère donne accès à un espace public et à un passage couvert qui, grâce à l'ouverture sur la cour arrière existante, permettent d'offrir aux piétons des connexions vers le théâtre du Manège et la place qui le borde. L'ensemble ainsi formé contribue à l'ouverture du 106 sur la ville. La nouvelle cour minérale est volontairement dépourvue de tout mobilier afin de favoriser son appropriation par les différents acteurs : riverains, visiteurs ou artistes.
Le programme prévoit la création de bureaux, d'un logement pour artiste et d'un autre pour le concierge, ainsi qu'une garderie pouvant accueillir une quinzaine d'enfants. La nouvelle aile, bardée de treillis métallique doré, toute en contraste avec les volumes enduits du bâtiment existant, s'aligne sur l'empreinte au sol de l'ancienne dépendance et souligne la composition classique. Sa silhouette sobre et pure engage un dialogue riche avec le volume prismatique du théâtre Le Manège voisin.
Repère essentiel dans le patrimoine des Montois, le 106 rappellera le lien entre la ville et les manifestations culturelles pendant et après l'événement « Mons 2015 ».
Dominique Gluck
| Sources |
|---|
| «Le 106 Fondation Mons 2015» sur le site Wallonie-Bruxelles Architectures, en ligne http://www.wbarchitectures.be/fr/architects/COTON_LELION_NOTTEBAERT/LE_106_-_Fondation_Mon, consulté le 01/03/2015. |
| K2A sprl, K2A sprl, Dossier Architecte - Fondation Mons 2015, K2A sprl. |