E.V.S.

Bureaux

2002 - 2003 2002 - 2003 2002 - 2003 2002 - 2003
Réalisé

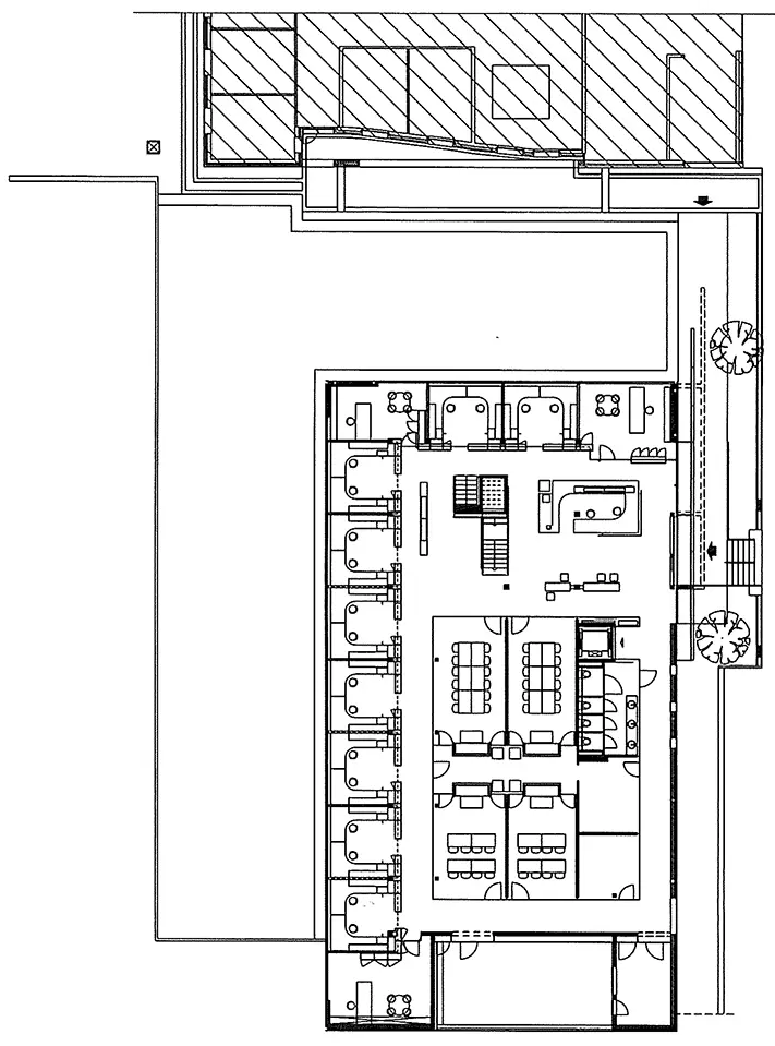
Scindé en deux éléments, le bâtiment abrite les bureaux administratifs, de production et le restaurant de cette société spécialisée dans l'image numérique.

Le premier volume s'installe sur le relief du terrain, en pente vers la voirie et loge la vaste cafétéria ; encaissé, couvert d'une toiture verte, il est composé de verre et de béton. 

Le second se pose sur le premier, en porte-à-faux ; jouant de la déclivité, il donne accès latéralement à l'entreprise. Il se développe sur deux niveaux, son gabarit respecte l'échelle humaine, le bâti voisin et le dense couvert végétal tout proche. Il est bardé de bois, matériau choisi par souci d'intégration. Les baies vitrées, orientées au sud-ouest, sont protégées par des pare-soleil.

Anne-Catherine De Bast

Sources
Loze Pierre, Belgium New Architecture 2, Bruxelles : Prisme Editions.