Centre de Dynamique des Groupes et d'Analyse Institutionnelle (CDGAI)
Bureaux
2002 - 2004
2002 - 2004
2002 - 2004
Réalisé
Fondé en 1972, le CDGAI est devenu une référence en matière de psychologie sociale. Le programme des installations confiées en 2002 à D. Dethier comprend la mise à disposition d'un lieu d'échange et de rassemblement, adapté à de petites assemblées qui doivent pouvoir se réunir dans de bonnes conditions d'isolement.
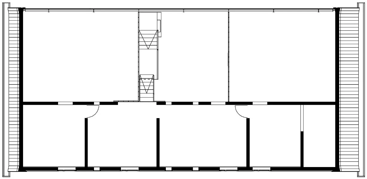
À la simplicité du programme, l'architecte offre une réponse limpide : un édifice de plan rectangulaire (23 x 10 m) sur un étage. Le rez-de-chaussée reprend les deux salles de réunion et leurs annexes, le hall, un secrétariat, une cuisine, un espace réservé à la mécanographie, les sanitaires et un local technique ; l'étage en mezzanine qui intègre une intervention de l'artiste bruxellois J. Glibert abrite les bureaux et la bibliothèque. La radicalité de l'expression architecturale embrasse l'aspect extérieur de l'édifice.
Le volume au profil d'ovale tronqué, le choix des matériaux apparents – caoutchouc noir, polycarbonate blanc, bois brun clair non traité –, la modénature des façades nord et sud et leurs jeux de transparence, la toiture qui, à l'est et l'ouest, descend jusqu'au sol, tous ces éléments confèrent une véritable identité visuelle au CDGAI.
Pour le traitement intérieur, l'architecte a laissé les salles épouser la courbe de la toiture, laissant naître un volume singulier où Pierre De Visscher, fondateur du centre, reconnaît la matérialisation du concept de matrice, d'isolat, sans contact perturbant avec l'extérieur et propice à la focalisation sur les relations interpersonnelles.
Pierre Henrion
| Sources |
|---|
| Henrion Pierre, «Le Centre de Dynamique des Groupes et d'Analyse Institutionnelle de Liège» dans Les Nouvelles du Patrimoine, n° 104, avril-mai-juin, 2004, p.38-39. |