Negundo III

Autres bâtiments d'éducation

2012 2012
Réalisé

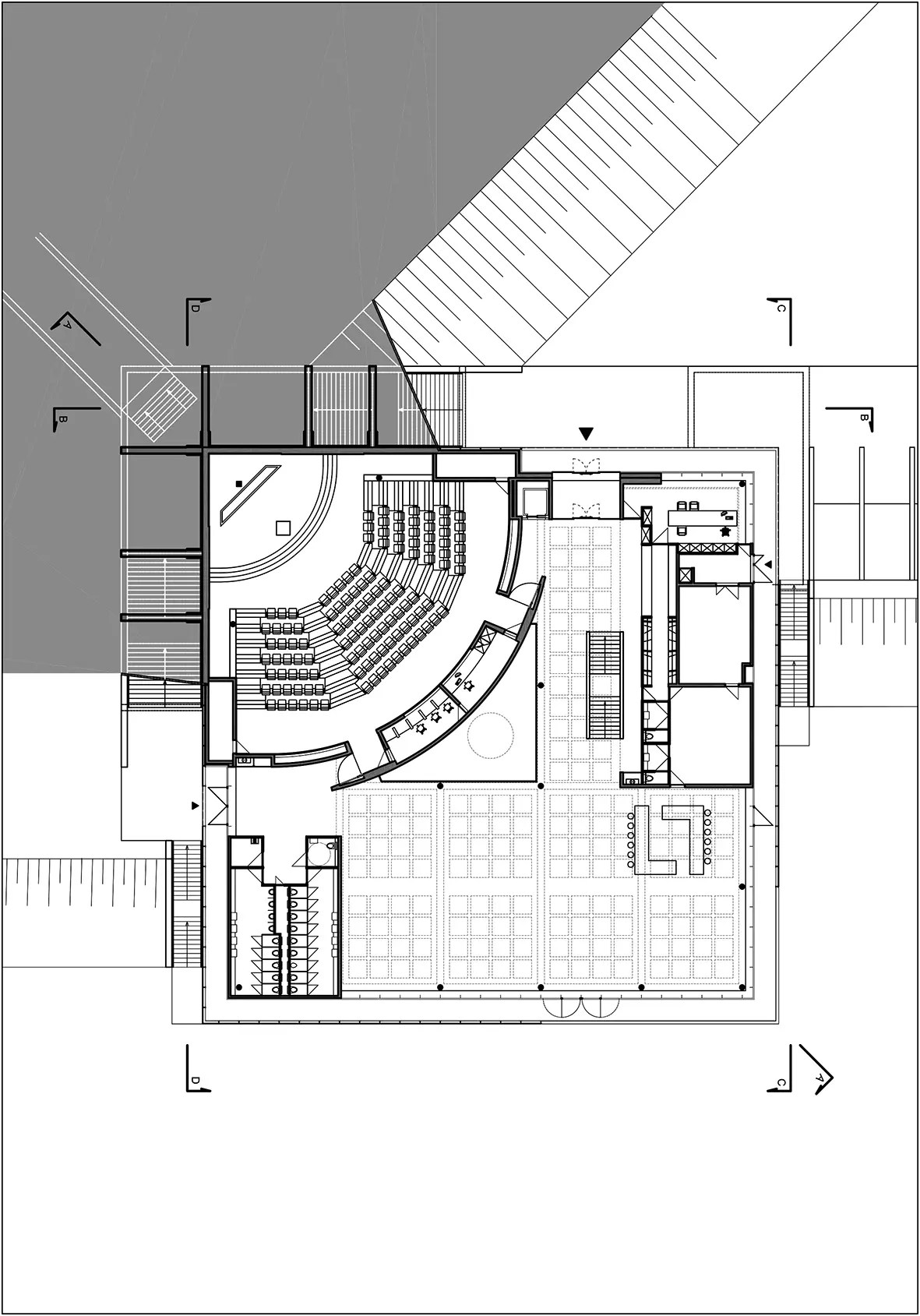
Troisième opus, Negundo III prend aussi le nom de « Negundo Cube », en référence à sa forme. Une forme que l'on ne devine toutefois pas nécessairement, la construction étant en partie encaissée dans les terres. Implantée en contrebas de Negundo I, elle profite effectivement de la déclivité pour déployer une grande esplanade, dans le prolongement direct de la voierie adjacente. Cet espace gratuit est l'occasion de donner une visibilité au jeune campus qui s'installe au niveau inférieur. Là, des salles de conférence accueillent les étudiants de l'Eurometropolitan e-campus derrière une façade alternant grandes baies vitrées et bardage métallique ajouré. Comme ses homologues, Negundo III est attentif aux problématiques durables, qu'il prend en charge aussi bien par des dispositifs techniques (énergie éolienne, par exemple) que par des dispositifs architecturaux (orientation des façades, par exemple).

Charlotte Lheureux

Sources
Archives de AAVO (Atelier d'Architecture Van Oost).