Negundo II

Crèches Pépinières d'entreprises

2008 - 2011 2008 - 2011
Réalisé

Aussi appelé « Negundo Innovation Center », le bâtiment accueille de jeunes entreprises dans le cadre d'une démarche expérimentable et durable, à l'image du centre La Lanterne d'Enghien, dont il partage d'ailleurs la maîtrise d'ouvrage. 

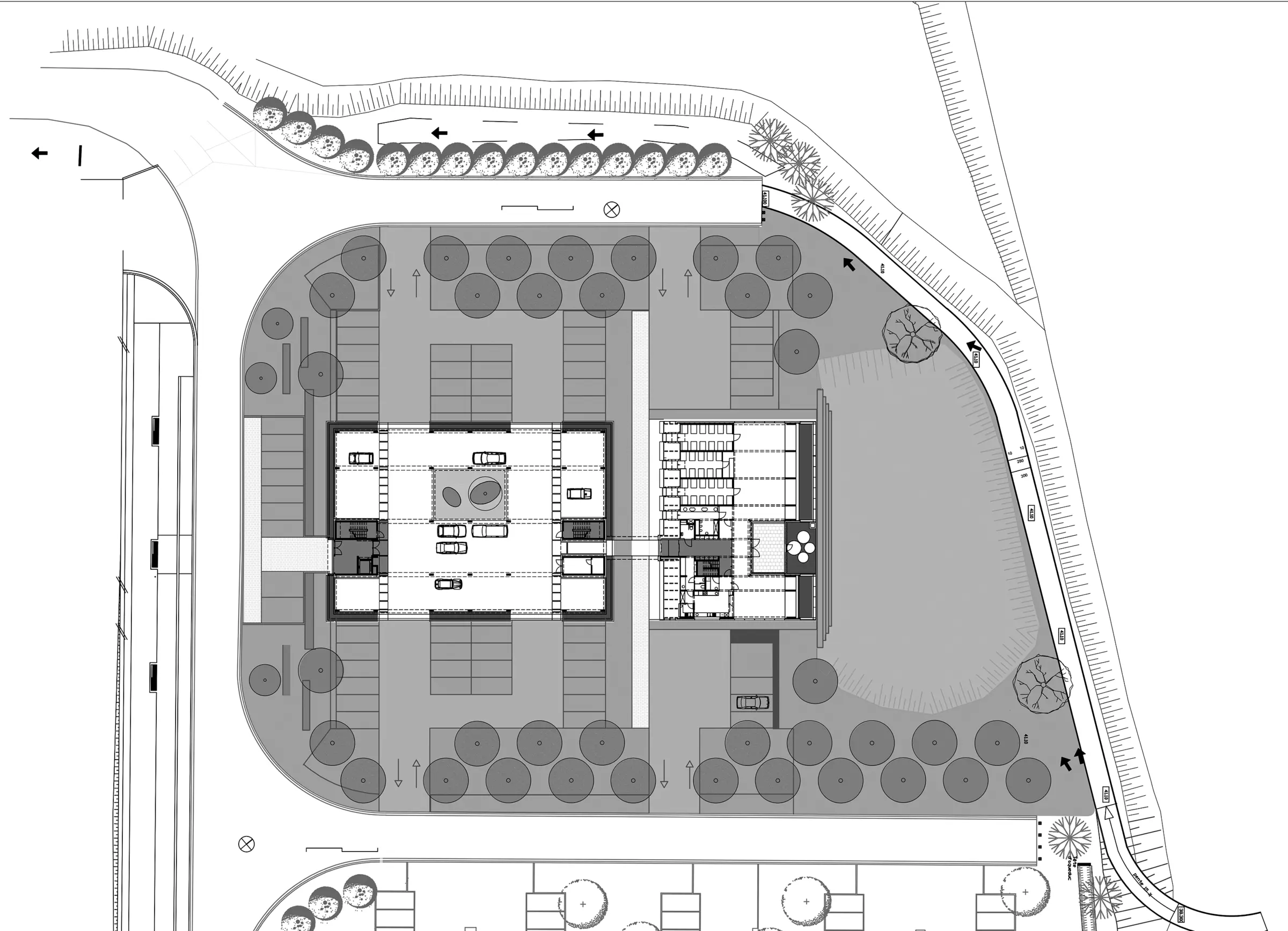
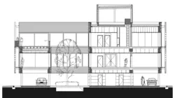
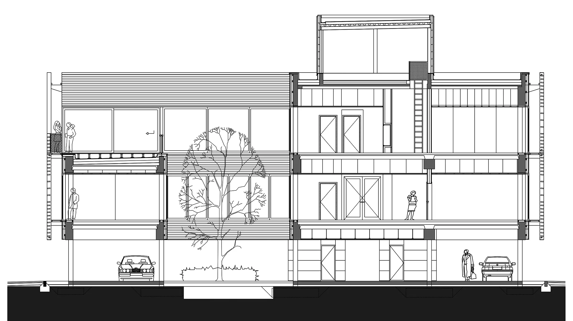
Attentifs aux enjeux de l'opération lancée par IDETA, les architectes énoncent trois grands principes : compacité, minimalisme et transparence. Ces principes se déclinent en deux volumes programmatiques, distingués tant par leur expression que par leur rapport au contexte. Le premier règle la question du ratio serré entre surface à construire et surface constructible par son élévation sur pilotis, libérant une grande partie du terrain. Sa forme en « U » dessine un patio central, autour duquel dix-huit bureaux et six salles de réunion s'organisent au gré d'une trame carrée particulièrement dense. Ses façades, entièrement vitrées, se doublent d'un bardage de bois exotique, pour offrir aux salles attenantes une lumière filtrée mais non moins abondante. De l'autre côté d'une « faille piétonne paysagère », le second répond à la géométrie orthogonale de son voisin par des lignes ciselées. Sa silhouette triangulaire est l'occasion de tirer un trait continu entre sol et toiture, laquelle émerge des terres et se couvre d'une végétation basse. Ici, l'acier Corten domine, sa teinte cuivrée s'associant de manière opportune au vert environnant, dans l'idée du paysage automnal. Une échancrure pratiquée en son centre dégage un espace protégé pour les enfants accueillis, s'agissant d'une crèche. 

Bien que très différents, les deux volumes se retrouvent autour des problématiques environnementales – économie d'énergie et réduction de l'impact environnemental –, qu'ils résolvent notamment par l'installation de panneaux photovoltaïques et de mini-éoliennes.

Charlotte Lheureux

Sources
Archives du bureau Holoffe-Vermeersch Architecture.