Faculté de médecine et de biologie

Bâtiment universitaire

1971 - 1981 1971 - 1981
Réalisé

Construit à la place de l'ancienne chapelle des Jésuites, ce bâtiment se situe dans le prolongement de l'agrandissement de l'implantation universitaire. 

Afin d'augmenter l'emprise disponible du terrain, il était à l'origine prévu de démolir l'ancien collège Notre-Dame de la Paix, bâtiment en briques rouges implanté à l'angle de la rue Lelièvre et de la place du Palais de Justice. L'obligation d'un recul de 7 m depuis la rue en cas de construction neuve dissuada le maître de l'ouvrage de valider cette option. 

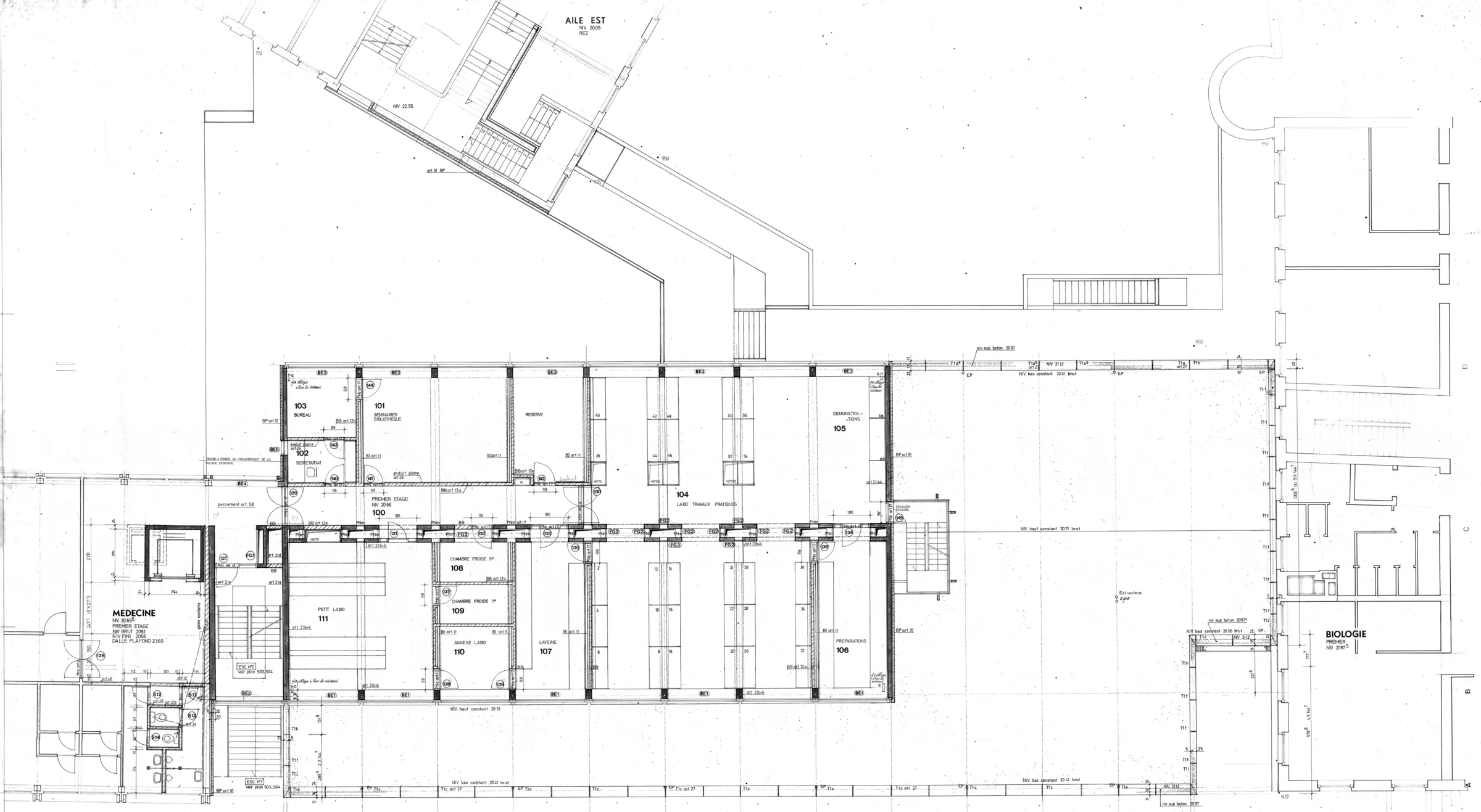
Le projet est composé de deux volumétries. Tout d'abord, la partie haute, abritant des laboratoires. Elle adopte une écriture de façade similaire aux autres bâtiments facultaires construits à cette époque : fenêtres en bandeaux et allèges en béton préfabriqué. L'élévation est placée en retrait de la rue et mitoyenne d'un seul côté afin de dégager un espace sur le côté de son pignon est. De la sorte, le soleil pénètre à l'intérieur de l'îlot et évite de le refermer davantage sur lui-même. 

La deuxième volumétrie est la partie basse, composée de deux niveaux abritant des auditoires, une agora intérieure ainsi que des bureaux. Sa façade est caractérisée par un grand mur-rideau aux vitrages foncés imprimant les reflets de la cathédrale.

Kevin Versailles

Sources
Versailles Kévin, Roger Bastin et l'Université de Namur : un campus en ville, Namur, Presses universitaires de Namur, 2019.