Bibliothèque universitaire Moretus Plantin de l'UNamur
Jalon XX
Bibliothèques, centres de documentation, centres d'archives
1970 - 1979
1970 - 1979
Réalisé
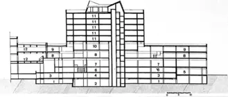
L'édifice prend la forme d'un L, dont le plus petit côté recrée la continuité du front urbain le long de la rue Grandgagnage. Cette aile est surélevée par des pilotis, ouvrant l'intérieur de l'îlot. Ce dernier est une agora aménagée en gradins afin de retrouver les niveaux des rues alentour. Des cheminements piétons encerclent le bâtiment dont l'entrée se fait à l'extrémité est, par un petit volume partiellement détaché de la volumétrie principale.
Les élévations dialoguent avec le contexte : des briques sont maçonnées afin de créer des continuités de matériaux, le long des rues Grandgagnage et Grafé. À l'inverse, les élévations nord et sud sont revêtues d'éléments en béton préfabriqué. Les vitrages articulent les volumétries entres elles et créent des effets de profondeur.
Le volume le plus haut, abritant la réserve à livres, est habillé d'un bardage en aluminium extrudé de ton bronze satiné. Roger Bastin espérait que ce revêtement s'accorde avec la coupole de la cathédrale. Diverses dimensions furent envisagées pour finalement s'arrêter sur la hauteur de 27 m au-dessus de la rue Grafé. Sur le projet final, il faut néanmoins faire remarquer la perspective verticale perceptible depuis l'entrée principale, réminiscence de la verticalité du projet de tour qui fut abandonné au bout de dix-neuf tentatives.
À l'intérieur, les espaces dédiés à la lecture sont répartis sur deux niveaux. Le second se place en mezzanine du premier, créant de la sorte des espaces dégagés sur la hauteur de deux étages. Les espaces sont organisés concentriquement autour d'un comptoir central. La lumière pénètre par deux registres d'ouverture : des fenêtres en bandeaux horizontaux et des lanterneaux. Ceux-ci sont placés en périphérie de l'édifice, permettant à la lumière zénithale de longer les voiles de béton. Le niveau mezzanine se détache, par endroits, des façades extérieures, permettant de la sorte à la lumière d'être diffusée jusqu'à l'étage du bas. À l'intérieur, la vérité des matériaux s'exprime pleinement : le béton brut de décoffrage est laissé visible, tout comme les blocs en terre cuite utilisés pour les murs de cloisonnement.
(Voir : Université de Namur ; Faculté de droit ; Faculté d'informatique ; Département de physique-chimie ; Arsenal)
Kevin Versailles
| Sources |
|---|
| Versailles Kévin, Roger Bastin et l'Université de Namur : un campus en ville, Namur, Presses universitaires de Namur, 2019. |
| Pouillon Henry, L'habitation individuelle dans l'oeuvre de l'architecte Roger Bastin (1913-1986) : modernité ou régionalismes en Belgique ?, UCL, Louvain-La-Neuve, Archéologie et histoire de l'art, 1997. |