École fondamentale Sainte-Marie

Ecoles maternelles Ecoles primaires

1981 - 1984 1981 - 1984
Réalisé

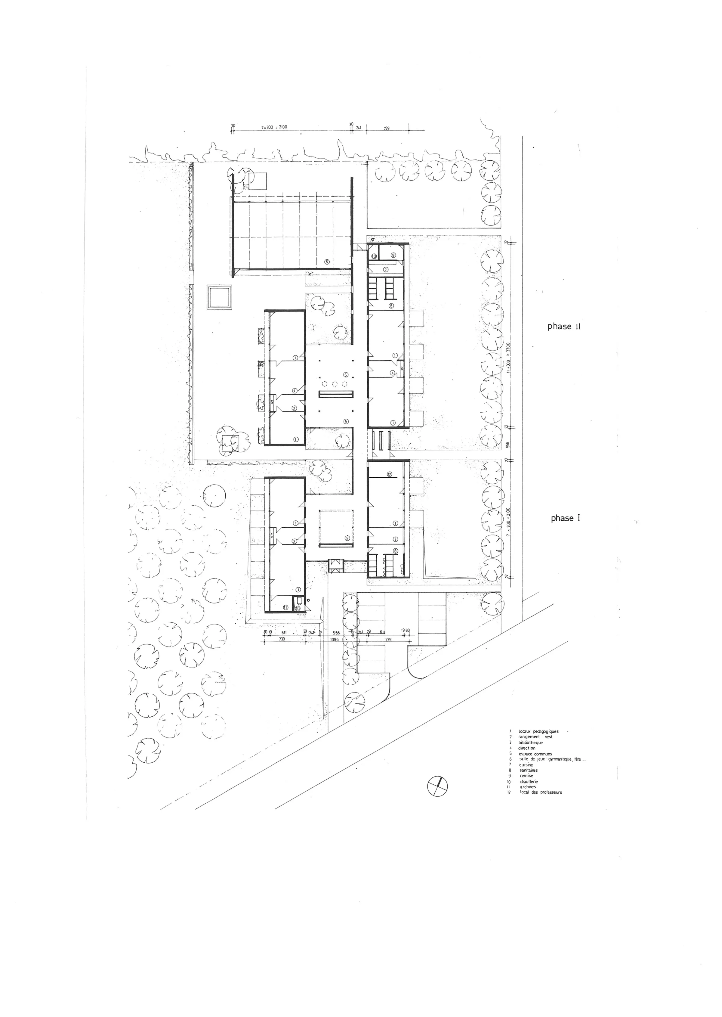
Située dans un agréable environnement champêtre, cette école est organisée comme un petit village, disposé selon un axe orienté sud-est/nord-ouest. 

Outre une salle de gymnastique, elle compte douze classes, réparties en quatre pavillons distribués autour du bloc central qui comprend l'entrée et le centre de documentation. Les pavillons des classes, aux façades largement vitrées, sont couverts de toitures à un rampant faiblement incliné qui s'élèvent symétriquement dans des directions opposées, deux vers le nord-est, deux vers le sud-ouest, pour venir chercher la lumière par-dessus le toit plat de la partie centrale. 

Le grand volume de la salle des sports est, lui, recouvert d'une toiture en bâtière. La structure de tous les bâtiments est en bois lamellé-collé ; les façades extérieures des classes sont composées de huisseries en bois qui articulent des parties vitrées avec des parties opaques en panneaux blancs, les autres sont en parpaings de béton coloré gris-rose ; toutes les toitures sont réalisées en plaques ondulées de fibrociment. 

L'ajout, sans nul doute nécessaire, d'un préau en plastique supporté par des poteaux métalliques n'est pas du meilleur effet. Pas plus que les dispositifs peu heureux visant à atténuer la lumière, trop abondante, provenant des fenêtres hautes dans les classes.

Xavier de Coster

Sources
«Ecole primaire Ste-Marie» sur le site Atelier d'Architecture Thierry Lanotte, en ligne http://atelierlanotte.be/projets/sainte_marie_namur_primaire/index.html, consulté le 28/07/2022.
Archives Atelier Lanotte.