Lotto Mons Expo et Archives de l'État
Bibliothèques, centres de documentation, centres d'archives Centre d'exposition
1999 - 2002
1999 - 2002
1999 - 2002
Réalisé
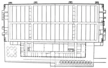
Le bâtiment, résultat d'un partenariat entre la Ville de Mons et la Régie des Bâtiments de l'État fédéral, superpose deux programmes de construction : au niveau supérieur, un hall multifonctionnel destiné à accueillir des manifestations associatives, commerciales, sportives et culturelles ; au niveau inférieur, un espace affecté à la conservation d'archives.
La Ville, maître de l'ouvrage, met à disposition le terrain qu'elle possède sur le site des Grands Prés et construit le hall. L'État prend en charge le gros œuvre des fondations et l'aménagement des sous-sols mis à disposition des Archives de l'État. Le bâtiment est établi sur un terrain marécageux avec des caractéristiques mécaniques médiocres et la nappe phréatique proche de la surface du sol.
La zone souterraine est donc équipée d'une double paroi. La première baigne dans l'eau et porte le bâtiment comme un bateau ; la seconde protège les archives de l'humidité. Les magasins d'archives sont équipés de rayonnages mobiles. L'implantation souterraine présente deux avantages : l'absence de lumière naturelle nuisible à la conservation des papiers et des encres ; le confinement favorisant la sécurité en cas de vol ou d'incendie. Le hall présente une hauteur sous plafond de 18 m et une surface au sol de 10 450 m². Son ossature est constituée de vingt-deux arcs en béton de 63 m de portée, ce qui permet de libérer totalement l'espace intérieur d'appuis intermédiaires.
L'acier inoxydable a été employé comme matériau de parement : il offre non seulement d'excellentes garanties de pérennité, mais aussi une cohérence et une présence accrues des formes de l'architecture. Connecté au hall par une verrière longitudinale, un bâtiment parallélépipédique de deux étages, également habillé d'aluminium, abrite, au niveau supérieur, les locaux administratifs et de service du hall et, au niveau inférieur, les locaux des Archives de l'État à Mons ouverts au public, les espaces administratifs et la conciergerie.
Jean Glibert a été appelé à intervenir dans le complexe. Sa proposition introduit un élément structurant pour le visiteur : à partir d'un axe défini par l'alignement droit de la passerelle, toutes les surfaces qu'on rencontre de manière frontale sur la gauche à l'intérieur du bâtiment ont reçu une couleur.
Laurent Honnoré
| Sources |
|---|
| Henrion Pierre, René Greisch, ingénieur architecte, p.218-230. |
| Demortier Luc & Hinant Alain, «La poussée dArchimède. Hall multifonctionnel et dépôt des Archives de lÉtat à Mons» dans Dossier Ciment, n° 32, avril, 2004. |
| Van der Eycken Michel & Houtman Erick, Lach. Liber amicorum Coppens Herman, p.89-105. |
| «Hall multifonctionnel et Archives de lÉtat à Mons» sur le site CANEVAS, en ligne http://www.canevas.be/projets/2702/2702.html, consulté le 27/11/2013. |
| Commune de Mons - Autorisations de bâtir (Service Urbanisme), Archives de la Ville de Mons, n° AB12095, Mons, 1999. |
| Vermeulen Sara, «Hall flottant» dans A+, n° 196, 2005. |