Bains et thermes de la Sauvenière (auj. Cité Miroir)
Jalon XX
Centre d'interprétation
1938 - 1942
1938 - 1942
2010 - 2014
2010 - 2014
2010 - 2014
2010 - 2014
2010 - 2014
2010 - 2014
En octobre 1936, l'échevin des Travaux publics Georges Truffaut fait adopter par le conseil communal un projet visant à construire un établissement de bains en plein centre de la ville. Liège ne dispose plus de piscine couverte depuis 1919 et l'absence de salle de bains dans la plupart des logements rend nécessaire la création de bains-douches publics.
Un concours est organisé. Le programme prévoit notamment, sur un terrain enclavé de 80 m sur 29, la construction d'une gare d'autobus desservant la région liégeoise, de deux bassins de natation et d'un ensemble complet de bains publics. Quarante-neuf projets sont soumis, six sont retenus à l'issue d'une première épreuve. Ils proviennent des architectes Jan Vanhoenacker, Paul Étienne, Merlé, Michel Polak et Georges Dedoyard (qui réalisera également la salle de l'OM à Ougrée). Ce dernier est déclaré lauréat du concours le 18 mai 1937. Entamé l'année suivante, le chantier est retardé par le début de la Seconde Guerre mondiale.
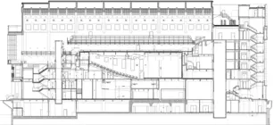
Le bâtiment est achevé en 1941 et inauguré le 2 mai 1942. La gare routière n'est mise en service qu'en 1950. Le complexe, dont l'ossature privilégie le béton armé, comporte une gare routière au rez-de-chaussée, surmontée par un hall de près de 80 m de long abritant les piscines. Il est largement éclairé par une voûte en briques de verre portée par huit arcs en béton armé. Les dégagements et locaux annexes occupent un immeuble de sept étages qui se dresse vers le boulevard. En sous-sol sont logés les installations techniques et un abri antiaérien pour quatre cents personnes.
La distribution, fonctionnelle, répond à deux préoccupations essentielles : faciliter l'itinéraire des différentes catégories d'utilisateurs et assurer des conditions d'hygiène optimales. Esthétiquement, l'architecte conjugue caractère rationnel et monumentalité, modernisme et classicisme. La volumétrie du grand hall évoque celle de la piscine de la Butte aux Cailles à Paris, construite de 1922 à 1924 d'après les plans de Louis Bonnier.
Après des années d'abandon, menacée de démolition, la Sauvenière connaît une seconde vie à travers son classement et sa reconversion en centre dédié au travail de mémoire, au dialogue des cultures et à la citoyenneté (la Cité Miroir) et une salle de concerts dans l'ancienne gare des bus (le Reflektor).
Paul Hautecler
| Sources |
|---|
| Di Campli Flavio, «Les Bains et Thermes Liégeois La Sauvenière : la "cathédrale" de l'architecture sportive en Wallonie» dans Bulletin de la Société Royale Le Vieux Liège, n° 272, Liège, 1996, p.449-456. |
| Hommage à Georges Truffaut, promoteur des bains de la Sauvenière, Liège, Desoer, 1946. |
| «Quelques oeuvres de l'architecte G. Dedoyard» dans L'Émulation, n° 11, Bruxelles, novembre, 1937, p.198-200. |
| Desaive Pierre-Yves, «Liège : les Bains et Thermes de la Sauvenière en sursis.» dans Les Nouvelles du Patrimoine, n° 68, juillet-août-septembre, 1996, p.29-30. |
| Di Campli Flavio, «Les Bains et Thermes de la Sauvenière à Liège, menacés de démolition» dans A+, n° 141, août-septembre, 1996, p.40. |
| Di Campli Flavio, «Des Bains de la Sauvenière à Mnema, Cité Miroir à Liège» dans Les Cahiers de l'Urbanisme, n° 57, décembre, 2005, p.69-73. |
| «Les bains de la Sauvenière à Liège» dans Le Mouvement communal, n° 235, Bruxelles, août-décembre, 1946, p.273-282. |
| Aimont E., «La piscine couverte de la Sauvenière à Liège» dans La Technique des travaux, n° 7 et 8, Liège, juillet-août, 1949, p.194-204. |
| Bury Raoul, «Le centre sportif des bains de la Sauvenière, à Liège» dans Le mouvement communal, n° 251, Bruxelles, juin-juillet, 1949, p.155-157. |