Accès au parc Sainte-Agathe
Logement public Parcs et jardins
2001 - 2012
2001 - 2012
2001 - 2012
Réalisé
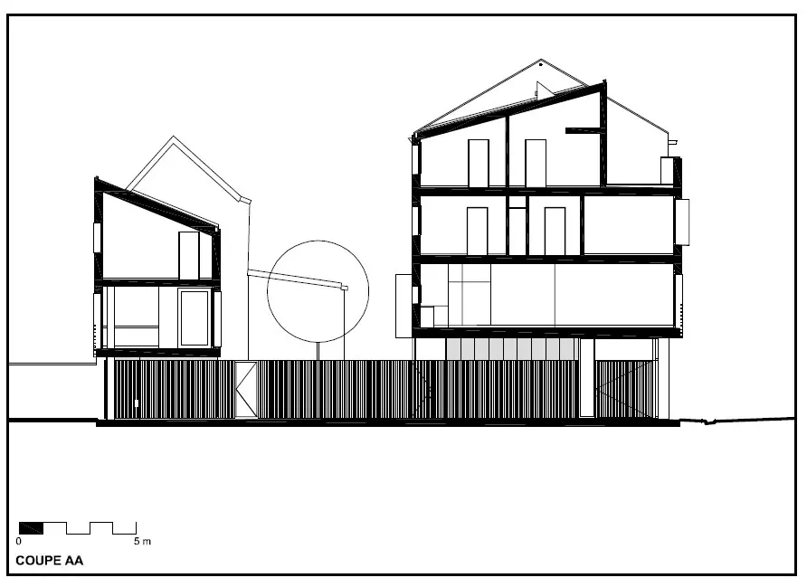
Le schéma directeur du quartier SainteMarguerite a prévu d'aménager en parc public le jardin de l'ancien couvent Sainte-Agathe, sur un terrain en pente correspondant au versant de la Légia.
La Ville de Liège a acquis un immeuble en ruine rue Saint-Laurent afin de créer un accès dans sa partie supérieure et d'y construire deux logements autonomes (un à rue, l'autre vers le parc). La façade s'inspire du rythme parcellaire traditionnel. Le bâtiment arrière encadre l'entrée et la sortie du parc par une présence habitée en intérieur d'îlot.
Compte tenu des contraintes spécifiques liées à l'habitat mitoyen et au passage public, les architectes ont créé des logements spacieux et lumineux (2 et 4 chambres), disposant d'espaces privatifs extérieurs respectant l'intimité des habitants. L'ensemble est revêtu d'un bardage en terre cuite, choisi pour son aspect naturel et chaleureux. Les ouvertures se distinguent par leurs formes et leur cadre en acier galvanisé qui oriente les vues des résidents vers la ville et le parc.
Enfin, pour qualifier le passage public de la rue vers le parc, un bardage en afzelia a été choisi, avec un travail sur l'absorption acoustique
Laurent Brück
| Sources |
|---|
| HE-Architectes & De Wit Pierre & Henry Damien, «Fiche de présentation de l'immeuble d'accès au parc Sainte-Agathe (St Laurent 3)». |
| «Inauguration des logements rue Saint-Laurent, 28» sur le site Site internet de la Ville de Liège, en ligne https://www.liege.be/logement/realisations-logements-de-la-ville/saint-laurent-28, consulté le 29/07/2013. |