Villa Jacquemin

Habitation unifamiliale

1935 - 1936 1935 - 1936
Réalisé

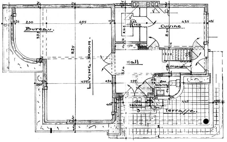
Construite pour un ingénieur travaillant pour la Société des pieux Franki, la villa Jacquemin combine éléments de béton armé et maçonnerie traditionnelle. L

'architecte dispose au rez-de-chaussée et à rue un vaste living-room en connexion avec le bureau du commanditaire, tandis que la cuisine est orientée vers le jardin. Un escalier central mène aux espaces de nuit ainsi qu'à la chambre de bonne, située au dernier niveau. 

Extravertie, l'habitation s'ouvre largement sur la nature avec de nombreuses grandes fenêtres ainsi que plusieurs terrasses, dont une établie en toiture est partiellement couverte par un auvent en porte-à-faux. La baie verticale en briques de verre éclairant l'escalier ainsi que le mur protégeant la terrasse du premier étage sont des éléments que l'on retrouve dans la villa Canneel-Claes réalisée par Louis Herman de Koninck en 1931, l'une des constructions les plus publiées de l'architecture moderniste belge. 

L'immeuble est agrandi et fortement dénaturé dans les années 1980.

Sébastien Charlier

Sources
Archives privées de Pierre Rousch..