Succursale de la Société Générale de Banque et Hôtel Diplomate

Hôtels Bureaux

1971 1971
Réalisé

Construite sur la parcelle destinée au projet avorté de l'hôtel Parking, complexe multifonctionnel imaginé par l'entrepreneur Jean Baudoux en contrepoint de la tour Albert, et esquissé par Paul Hayot (secondé par Marc Migeotte) comme la superposition d'unités fonctionnelles distinctes (le silo de parking en socle, surmonté d'une tour), la succursale de la Société générale de Banque en reprend ce principe de composition. 

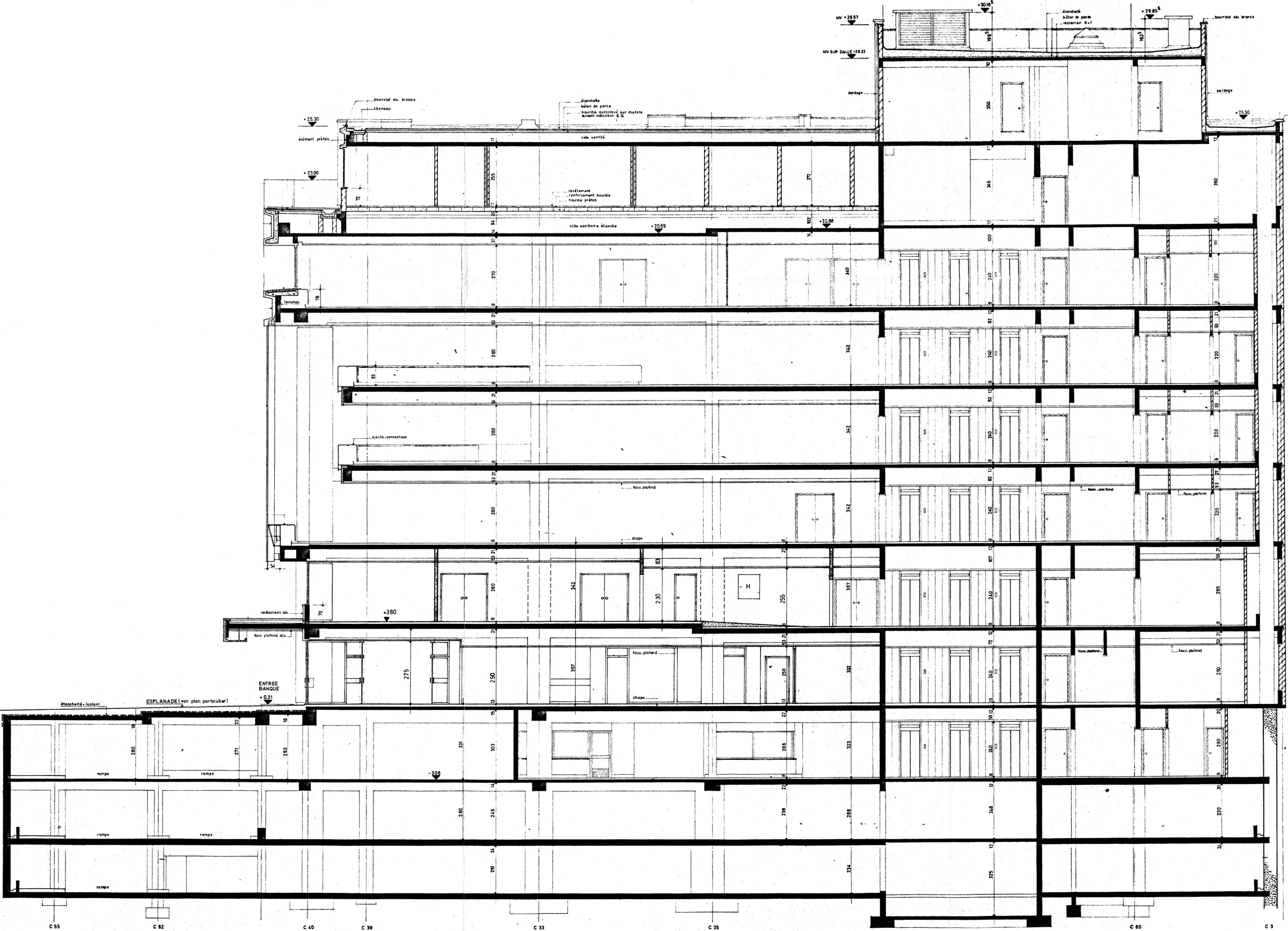
Le socle, occupé par la banque, est entièrement vitré. Afin de compenser l'épaisseur du bâtiment, la façade surplombant le rez-de-chaussée est entièrement dépourvue d'éléments structuraux, littéralement en suspension, selon une technique innovante pour l'époque, depuis le niveau technique qui sépare la banque de l'hôtel. 

Esthétiquement et structurellement inspiré du siège de la Royale belge à Boitsfort (René Stapels, 1966) et le siège de la banque Rispiarmo di Venezia, Campo Manin à Venise (Luigi Nervi, Angelo Scattolin, 1964), l'allure diaphane et flottante du socle est renforcée par un jeu d'évidement du volume par des mezzanines, afin de faire pénétrer la lumière naturelle le plus profondément possible. Ce schéma extraverti s'inverse pour l'hôtel Diplomate (aujourd'hui Léonardo) déposé en léger retrait sur le socle vitré, avec lequel il est en contraste total. Le traitement des deux parties de l'immeuble reflète en effet le traitement fonctionnel spécifique de chaque partie. Leur superposition n'est d'ailleurs pas que programmatique. 

La maîtrise d'ouvrage diffère également, l'opérateur hôtelier ayant eu recours à un autre architecte, Michel Seret, formé en même temps que Paul Hayot à l'école d'architecture Saint-Luc de Bruxelles. La forte matérialité pour laquelle opte Seret exprime l'introversion de l'organisation du plan de l'hôtel, plan organisé autour d'un vaste patio. De même, contrairement à la façade vitrée qui suit la géométrie de la parcelle, l'étage de l'hôtel observe une orthogonalité stricte, qui rattrape l'alignement du boulevard Tirou par une subdivision du volume en redents.

Gery Leloutre