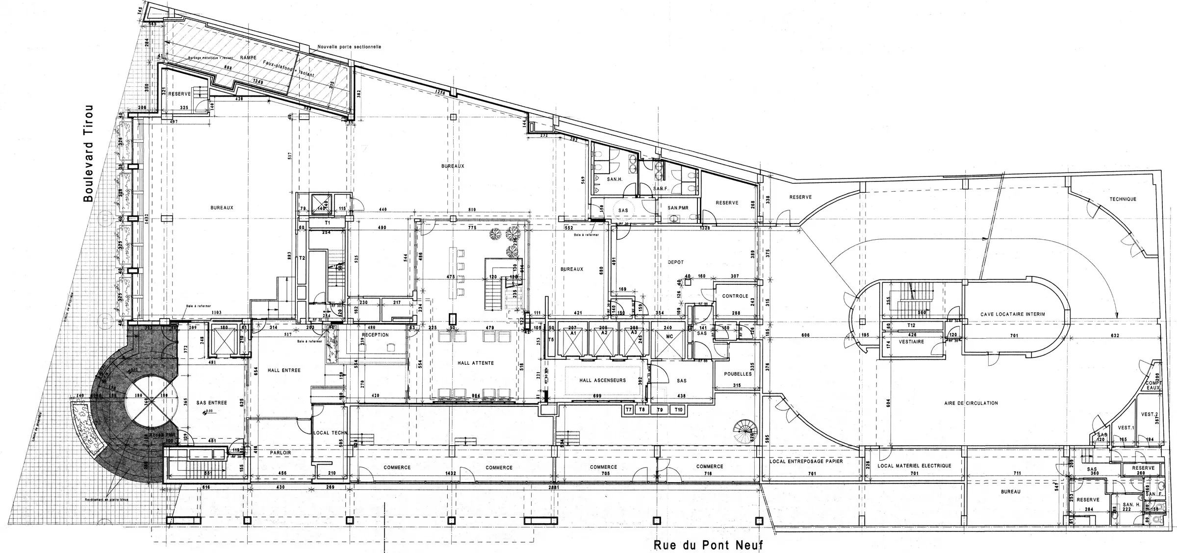
Siège des A.G.

Bureaux

1988 1988
Réalisé

En tant que vénérable société d'assurance, la massivité du bâtiment faisait partie des souhaits des A.G. pour leur siège carolorégien. Paul Hayot et Jacques Baudon parviennent néanmoins, derrière l'apparente sécheresse architecturale de ce bloc de granit, à transformer l'exigence en travail sculptural complexe et assez subtil, jouant sur les statuts des deux voies qui ceinturent le bâtiment. 

L'encadrement de la façade du boulevard Tirou, par l'expression de la tranche du mur mitoyen, le dépouillement de l'angle et le couronnement marqué par l'encorbellement du dernier étage de bureaux, génère un caractère solennel qui sied au parvis formé par l'élargissement de la voirie, tandis que la vue depuis la ceinture de la ville, sur la rue du Pont Neuf, offre une impression plus fluide d'un empilement de tranches de pierre et de verre qui cadre bien avec la perspective sur le ring intérieur. 

La force sculpturale de l'ensemble est soulignée par l'épais auvent de l'entrée ainsi que les murs de refend qui rythment la façade des bureaux du rez-de-chaussée et qui entrent en résonance avec l'émergence de la tranche du mitoyen et les épais pilastres de la rue du Pont Neuf. Ceux-ci permettent d'articuler la pente de la rue du Pont Neuf avec la rigidité des bandeaux de granit qui marquent les niveaux et qui recouvrent le rez-de-chaussée commercial traité sous forme de galerie couverte.

Gery Leloutre