Hôtel de Police - Extension de Charleroi Danses - Musée des Beaux-Arts
Commissariats de police Musées Salles de spectacles
2009 - 2014
2009 - 2014
2009 - 2014
2009 - 2014
2009 - 2014
2009 - 2014
2016 - 2018
2016 - 2018
2016 - 2018
2016 - 2018
2016 - 2018
2016 - 2018
Réalisé
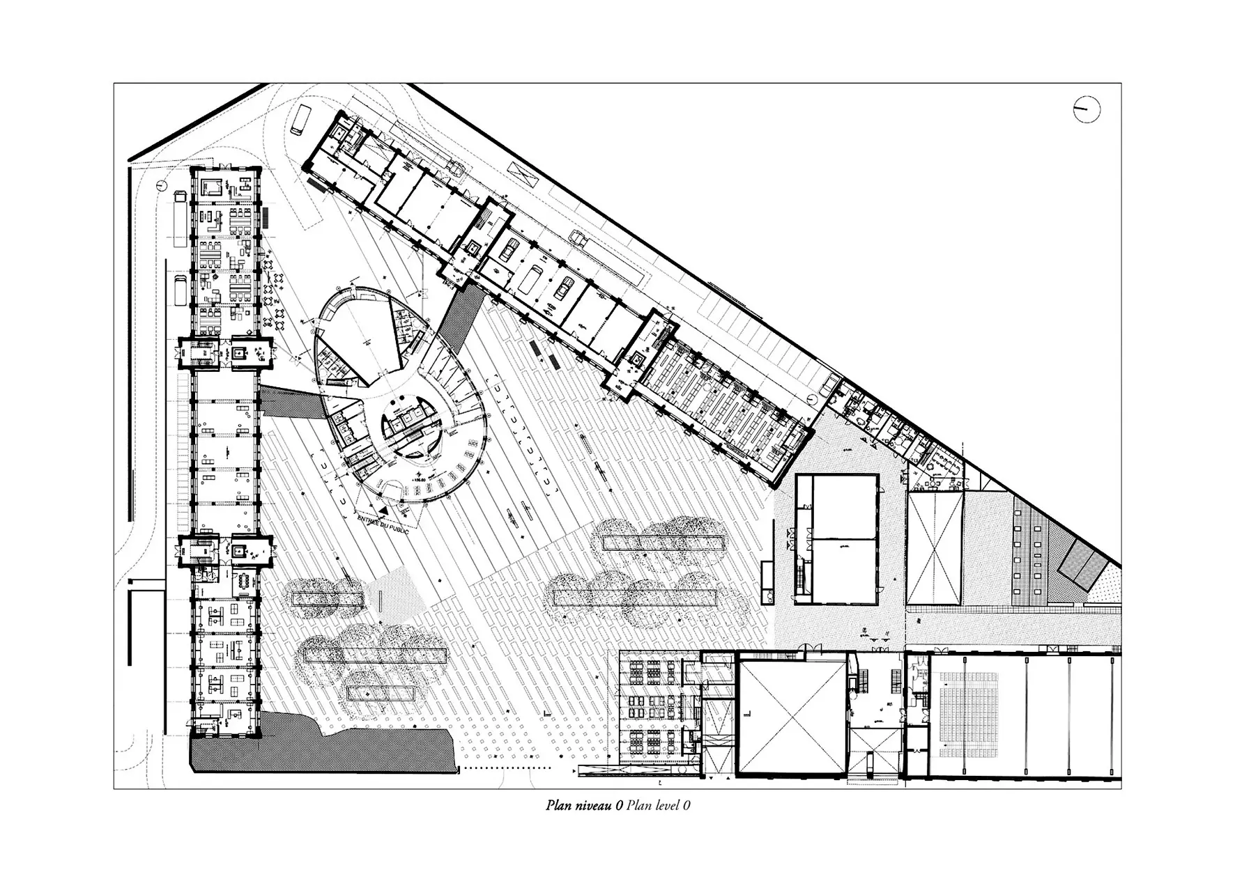
Réalisé au moyen d'un partenariat public-privé (PPP), le programme comprend la requalification des anciennes casernes de la gendarmerie, l'extension de Charleroi Danses, ainsi que, telle qu'elle fut décidée ultérieurement, la mise à disposition de salles d'exposition pour le musée des Beaux-arts de Charleroi.
L'hôtel de police est composé de trois édifices. Deux bâtiments de l'ancienne cavalerie en briques, soit plus des deux tiers du bâti existant, sont préservés et rénovés. Ils permettent d'abriter une partie des bureaux de la police. Les services connexes (cafétéria, salle événementielle) et les salles d'exposition du musée des Beaux-arts sont localisés dans de larges espaces des anciennes écuries au rez-de-chaussée.
La tour cylindrique elliptique de 75 m de haut, aux allures de panoptique, s'érige au milieu de la place. En briques bleues, elle rappelle les couleurs de la police. Ce nouveau repère urbain dialogue avec le beffroi de l'hôtel de ville de Charleroi. Dans la nouvelle tour, c'est le caractère de flexibilité qui prime dans la composition, permettant de moduler les espaces en fonction de la demande : chaque niveau peut changer d'affectation dans le but de favoriser les relations entre les services de police.
La verticalité de l'hôtel de police a permis de créer une grande place urbaine, ouverte sur la ville, accessible par le boulevard Mayence. Dans ce nouvel espace d'appropriation, c'est le caractère de mixité d'usages qui est recherché.
La nouvelle place est pavée de briques rouges striées et de briques bleues à l'abord de la tour, dans le but de relier la tour de l'hôtel de police aux bâtiments historiques. L'ancienne écurie du XIXe siècle abrite le Centre chorégraphique de la Fédération Wallonie-Bruxelles Charleroi Danses.
L'extension de Charleroi Danses comprend la conception d'un atrium ainsi que d'un nouveau foyer (la tente nomade rouge renvoyant à la légèreté des danseurs), trois nouveaux studios de danse, ainsi que des logements pour les artistes résidents.
Maurizio Cohen et Alice Galligo
| Sources |
|---|
| Vandernoot Cécile, «Intelligence du compromis» dans A+, n° 251, décembre, 2014, p.46-47. |
| Jean Nouvel : recent projects, Tokyo : ADA Edita Tokyo, 2014. |
| Deprez B. & Baccaert A., «Tour à Charleroi» dans Be passive, n° 15, août, 2013, p.6-7. |