Charleroi Danses

Salles de spectacles

2000 2000 2000 2003 2003 2003 2003
Réalisé

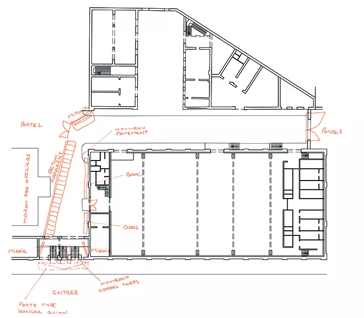
Trois ans après l'inauguration de la salle aménagée par Paul Warin en 2000, à l'occasion de la création The City (Frédéric Flamand, chorégraphe, et Zaha Hadid, architecte), les frères Lhoas proposent un nouvel accès à la salle de Charleroi Danses, centre chorégraphique de la Fédération Wallonie-Bruxelles, et sécurisent la séparation avec les fonctions voisines. 

Le parti architectural exprime une démarche expressive pour renforcer la symbolique du lieu. La situation existante a été adaptée, utilisant de manière créative des matériaux industriels. L'entrée, située là où étaient placées les anciennes portes de déchargements, est marquée par une porte pliante en panneaux d'acier perforés. 

Les talus de béton sont creusés pour accueillir trois escaliers métalliques de couleur et anodisés. Deux miroirs noirs font le lien entre la rue et l'espace d'accueil. Les panneaux de béton nus définissent le parcours d'accès. Un troisième miroir définit la fin de l'accès et l'entrée effective du bâtiment.

Maurizio Cohen, Jochen Schamelhout et Pauline Zamaron

Sources
«Charleroi – Danses : aménagement des espaces extérieurs : Charleroi»n° 5, décembre, 2004, p.165.
Bergilez Jean-Didier, Lhoas et Lhoas, crime, bricolage et abstraction, Bruxelles : CIVA, 2008.
Archives de Lhoas & Lhoas Architectes.