Centre Albert
Bureaux
1961 - 1964
1961 - 1964
1961 - 1964
1961 - 1964
1961 - 1964
1961 - 1964
1961 - 1964
2003
2003
Réalisé
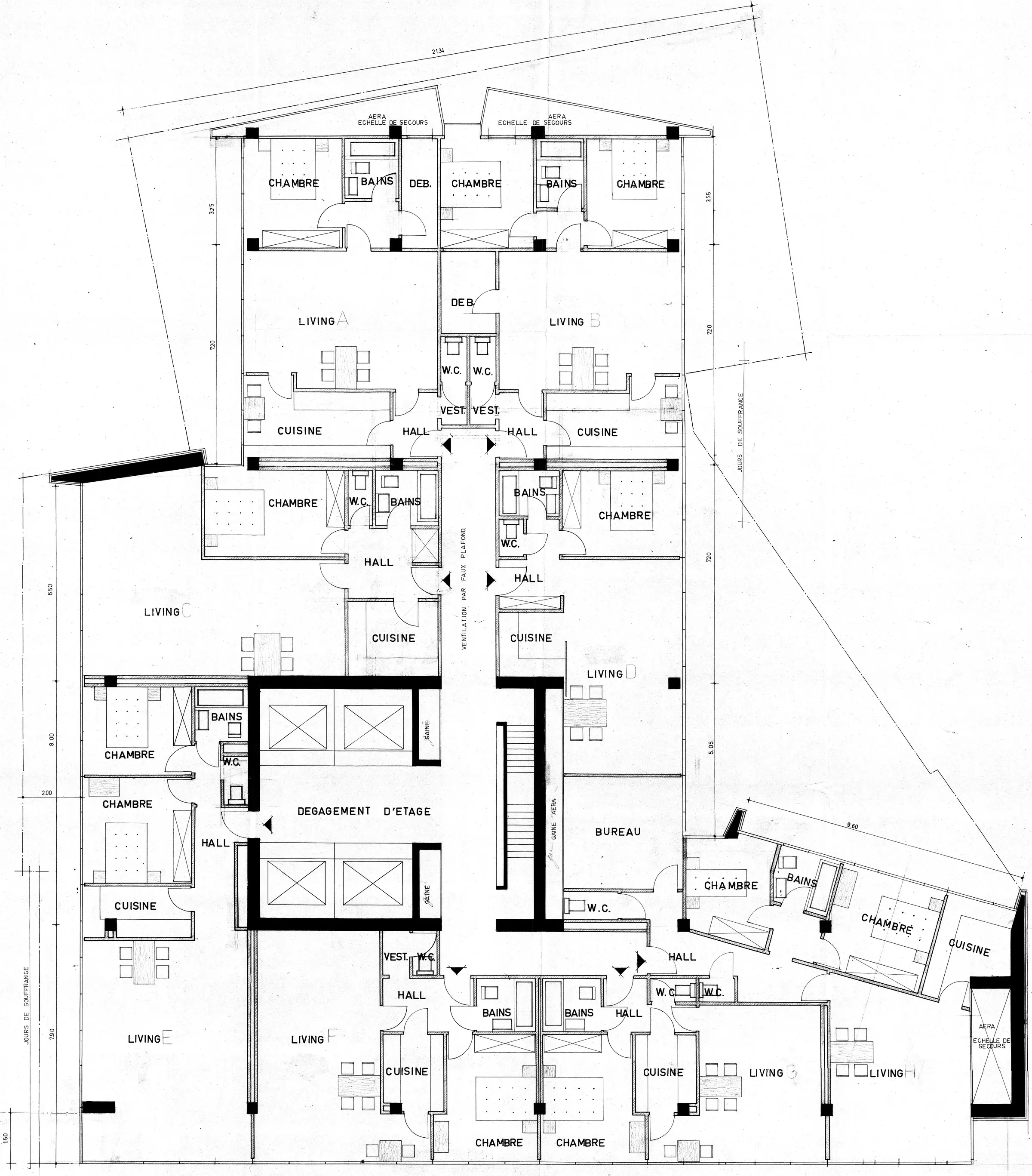
Également connue sous le nom de « tour Baudoux », du nom de l'entrepreneur qui l'a érigée, et également son instigateur, la tour Albert est esquissée en 1961 par Paul Hayot, secondé par son collaborateur Marc Migeotte. L'immeuble s'inscrit dans un diptyque de projets de prestige portés par Baudoux, dont fait partie la tour de l'hôtel Parking, boulevard Tirou (non réalisée).
Ces deux projets sont directement et explicitement inspirés du « Centre Rogier » à Bruxelles, construit en 1958 par Jacques Cuisinier (secondé par Serge Lebrun), qui sert de référence à Baudoux pour le centre Albert, au point qu'il intègre l'architecte bruxellois à son équipe de concepteurs, ambitionnant de réunir, en un centre d'affaires unique, des bureaux de standing pour industriels, des administrations publiques, une galerie commerciale, un centre médical, un hôtel, des logements, ainsi qu'un bar-restaurant, un dancing, des commerces. La programmation de la version définitive du projet, déposée en 1963, sera néanmoins radicalement limitée à des surfaces de bureaux, quelques services en façade et un restaurant d'entreprise.
L'immeuble qui, finalement, n'est que partiellement occupé par le ministère des Pensions et la Poste, au rez-de-chaussée, se révélera un échec commercial pour son promoteur, poussé à abandonner la réalisation de l'hôtel Parking, et participera à la faillite de l'entrepreneur en 1973. Inauguré en grandes pompes par le ministre Leburton, le chantier de cette tour de vingt-sept étages, qui, avec ses 83 m, est la plus haute de la ville, s'étale de 1964 à 1967 et voit la mise en œuvre de la technique innovante du coffrage glissant qui permettait de monter le noyau central d'un étage par jour (15 cm/h), un procédé appliqué pour la première fois en Belgique un an auparavant sur le chantier de la tour Madou (Albert Goffaux, 1963-1964) et utilisé au même moment pour la tour Hilton (Henri Montois, 1967).
La Régie des Bâtiments rachète progressivement le bâtiment et entame sa rénovation complète en 2003, remplaçant les verres fumés orange des murs-rideaux par des vitrages de tonalité verte.
| Sources |
|---|
| Wouters J. & Ghesquière D., «Charleroi : les grands moyens pour la tour» dans Le Soir, 23 juin, 1995. |
| Pirlet Lola & Culot Maurice, Charleroi d'Arthur Rimbaud à Jean Nouvel : 150 ans d'imaginaire urbain, Bruxelles : AAM, 2015. |
| Fonds Jacques Depelsenaire, Archive d'architecture moderne, Bruxelles. |