Laboratoires Delphi Genetics

Autres bâtiments de la santé Bureaux

2007 - 2012 2007 - 2012
Réalisé

Implanté au milieu de l'Aéropôle de Charleroi à Gosselies, le nouveau bâtiment de Delphi Genetics s'impose dans son environnement. Le projet transmet l'expression de la technique et de la performance, en adéquation avec l'image voulue de Delphi Genetics, groupe spécialisé dans les biotechnologies, comprenant des structures de recherche et développement, ainsi qu'une cellule de production. L'appartenance à cet univers des technologies de pointe est évoquée par les porte-à-faux qui se décrochent du bâtiment principal ainsi que par l'important travail technique pour obtenir un standard passif. 

La construction en béton enduit en blanc affiche des contrastes de pleins et de vides ; le sous-sol semi-enterré, habillé de briques foncées, donne l'illusion que le bâtiment flotte. Les façades jouent le rôle de poutres permettant de dégager les espaces internes, de garantir la stabilité des porte-à-faux et d'assurer une importante inertie contre la surchauffe. 

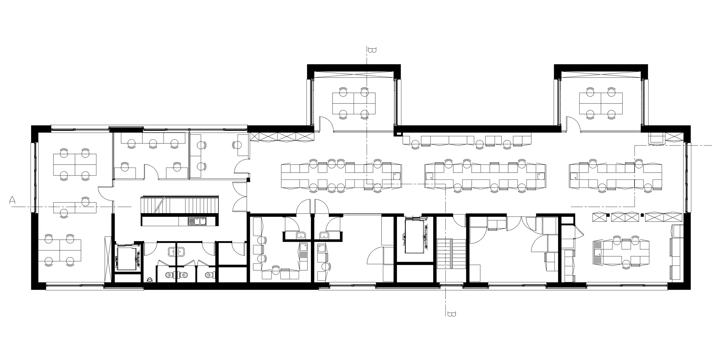
Au sous-sol sont situés les locaux de stockage, d'emballage, de chargement et déchargement et d'autres locaux techniques. Le rez-de-chaussée regroupe l'entrée, les bureaux administratifs et une zone de production. Le premier étage accueille des laboratoires et des bureaux. Au dernier niveau sont situées des salles de réunion et de restauration, bénéficiant d'une terrasse.

 Le bâtiment est pensé de manière durable et conçu pour un éventuel accroissement : une extension s'imbriquerait dans le grand châssis du porte-à-faux principal.

Alice Galligo et Maurizio Cohen

Sources
Willem J., «Architecture partagée» dans Be passive, n° 13, octobre-décembre, 2012, p.37-43.
«ARCHI URBAIN WALLONIE (01/07) : R2D2 / Delphi Genetics» sur le site Archi urbain, en ligne http://www.archiurbain.be/?p=5050, consulté le 25/11/2017.
Archives de R2D2 Architecture.