CETIC

Bureaux

2014 - 2016 2014 - 2016
Réalisé

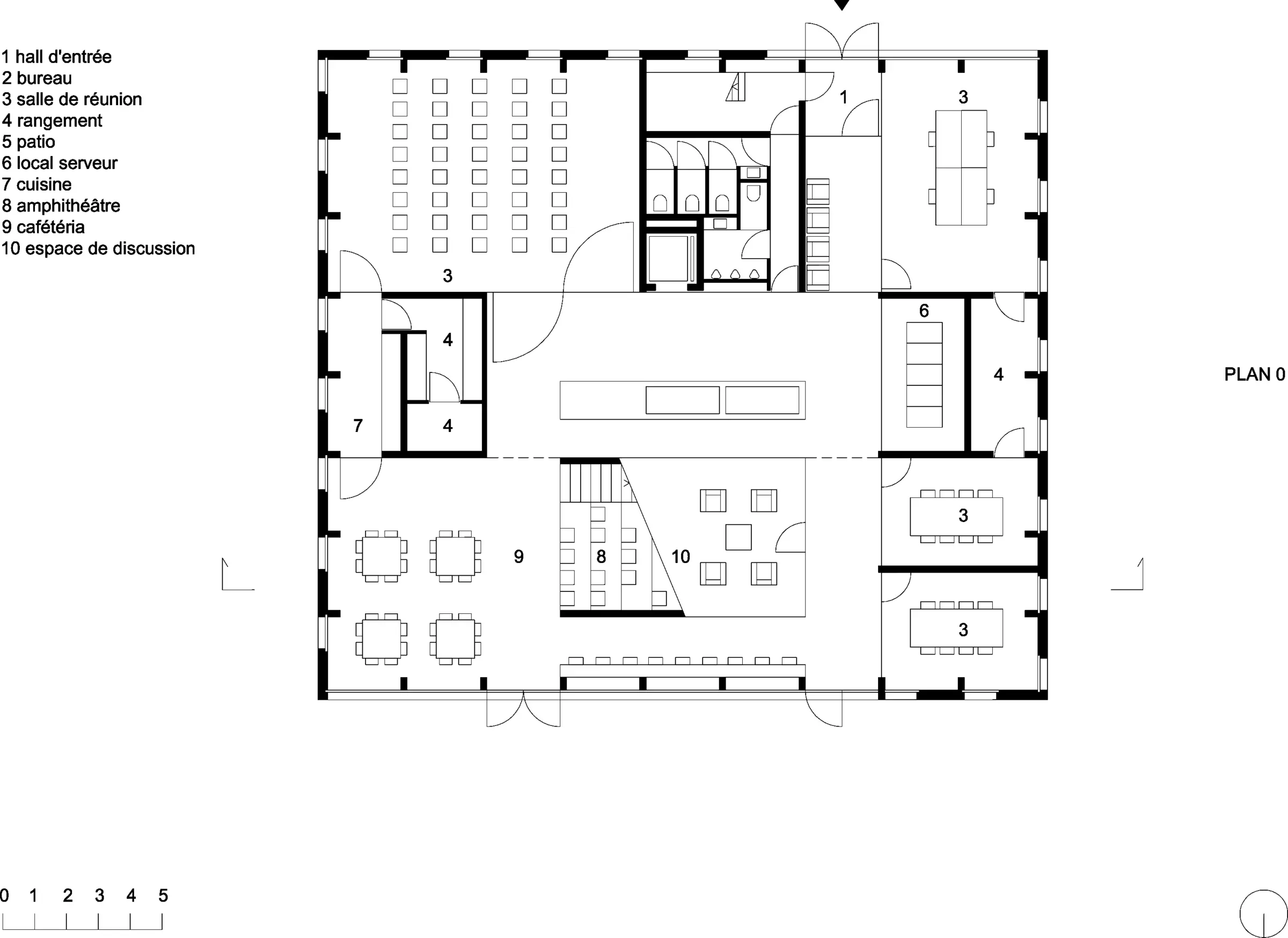
Proposant une surface utile de 1 500 m² de bureaux sur trois niveaux, la nouvelle construction adopte une forme cubique compacte, avec ses quatre façades orientées vers les points cardinaux – l'angle au nord accueillant l'entrée, face au parking paysagé. 

Le plan se calque, selon les concepteurs, « sur la métaphore de la fleur », où « chacun des pétales représente une alcôve de travail appropriable, tandis que, par le cœur, transit[ent] les échanges et les rencontres », réduisant à l'essentiel les espaces de circulation. 

La simplicité du parti architectural est à l'image de la sobriété des finitions, jouant sur le clair-obscur entre intérieur (sol en granito, structure en béton apparent et revêtement en chêne clair) et extérieur (bardage extérieur en Eternit gris foncé comme les châssis en aluminium).

Thomas Moor

Sources
LRArchitectes, 2006-2016, 2017, p.108.