Chapelle musicale Reine Élisabeth – Aile de Launoit
Autres bâtiments d'éducation Salles de spectacles
2006, 2012-2015 -
2006, 2012-2015 -
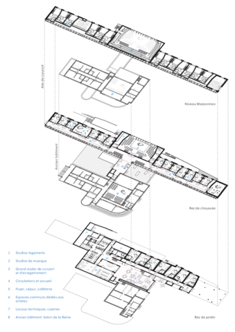
L'’extension de la Chapelle musicale Reine Élisabeth vise à doubler les capacités du bâtiment d’origine qui est classé, tout comme son environnement. Le programme prévoit l’augmentation des différentes fonctions nécessaires pour garantir le développement de l’institution en tant que lieu d’apprentissage d’excellence. On y ajoute vingt studioslogements – espaces de résidence et d’étude –, un grand studio de répétition, d’enregistrement et de représentation, deux studios de répétition pour des petits groupes, une cafétéria, un foyer, des espaces de séjour et de détente, intérieurs et extérieurs, une cuisine professionnelle.
Le nouveau volume est un parallélépipède, en grande partie vitré, de 88 m de long disposé à la lisière de la forêt d’Argenteuil, à l’arrière-plan de celui existant. Son implantation en léger contrebas valorise l’ancienne construction et accentue, par son horizontalité, le rapport privilégié avec le paysage environnant. La déclivité du terrain permet d’inscrire une grande quantité de surfaces dans le socle semi-enterré. En particulier, les fonctions collectives liées à la vie des étudiants.
La façade du nouveau bâtiment est un écran de verre sérigraphié suivant la transcription en pixels imprimés d’une partition d’Eugène Ysaÿe, initiateur de l’institution. Cette solution produit un effet de dématérialisation du volume qui se mélange au paysage en le reflétant. À l’intérieur, le bois est le matériau plus présent en résonance avec les lambris et les parquets de la chapelle existante. Chaque studio est conçu comme une unité structurellement indépendante pour répondre aux nécessités de haute performance acoustique. Le plus grand est conçu pour garantir une grande flexibilité et ses dispositifs de correction du son peuvent varier pour s’adapter à la spécificité de chaque morceau de musique. Doté d’une régie et équipé pour l’enregistrement, il peut accueillir deux cents personnes disposées face à une grande baie vitrée ouverte vers la forêt d’Argenteuil.
Cette architecture renforce le patrimoine et le paysage et, par son écriture puissante et inventive, plonge les utilisateurs dans la sérénité et le calme de la nature, tout en garantissant des performances de grande qualité.
Maurizio Cohen
| Sources |
|---|
| MARTIN, S., « La Chapelle musicale s’agrandit » dans Le Soir, 18.01.2015, p. 33.. |
| NORMAN, A., « Extension de la Chapelle musicale Reine Élisabeth à Waterloo » dans NORMAN, A., « 9 Espaces culturels en Brabant wallon », Architectures, t. 15, Wavre, Centre culturel du Brabant wallon – Maison de l’urbanisme, 2015, p. 16-23.. |