Logements Baillon

Immeuble à appartements Bureaux

2014 - 2016 2014 - 2016 2014 - 2016 2014 - 2016
Réalisé

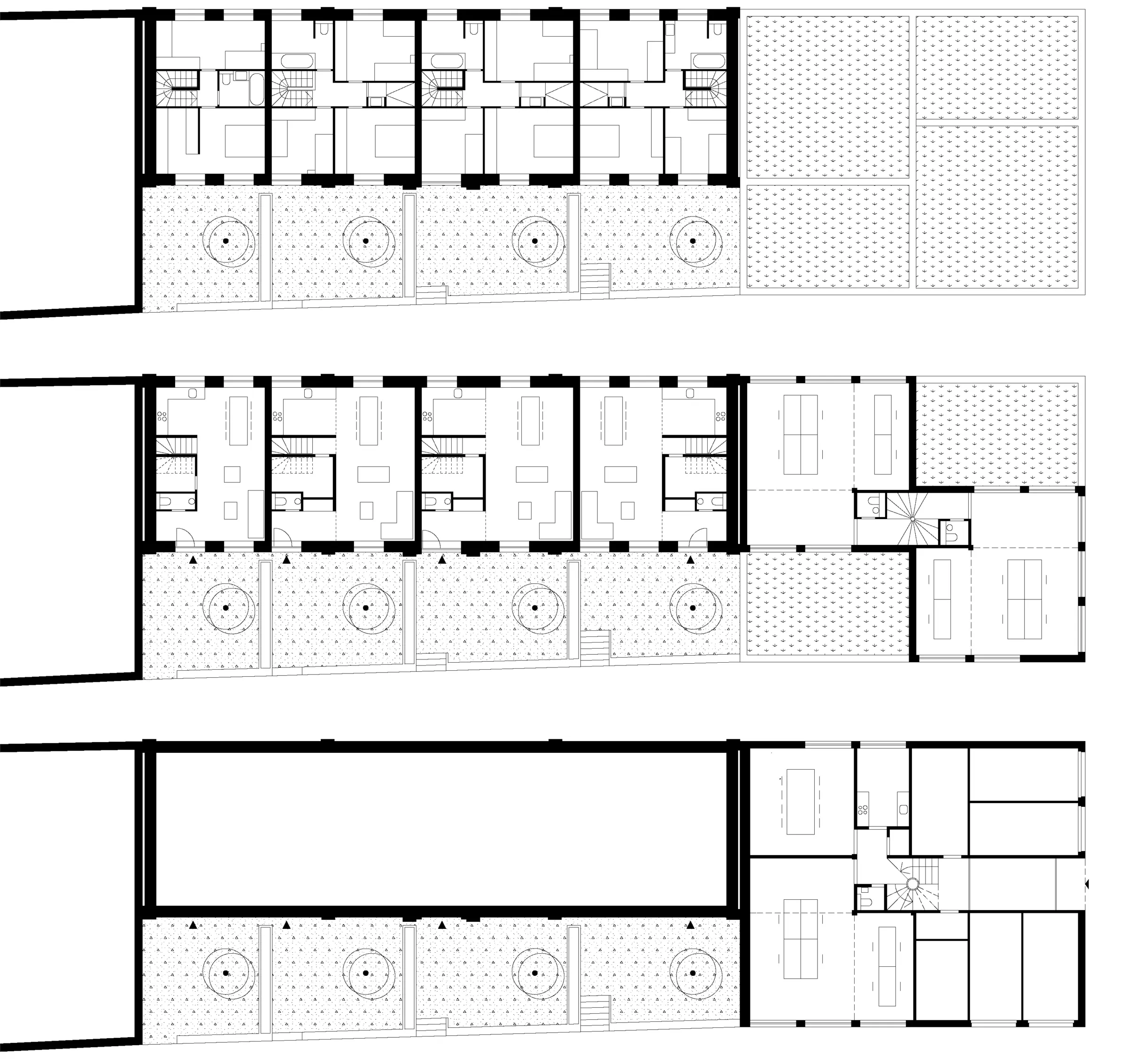
Abandonnée depuis de nombreuses années, l'école Baillon sort finalement de l'oubli en 2014 et fait l'objet d'une importante réhabilitation et reconversion. Les grandes salles de classe qui la composaient changent radicalement d'affectation et deviennent quatre logements unifamiliaux. Ces habitats, en duplex, proposent un plan simple avec un généreux living traversant et trois chambres. En opérant une série très limitée de transformations sur l'enveloppe extérieure du bâtiment, les logements s'y immiscent et lui apportent discrètement un nouveau souffle. Les deux entités annexes, en revanche, plus endommagées, sont rasées et laissent place à un jeu de cubes enchevêtrés dans lequel viennent s'installer les bureaux d'une agence d'architecture. L'ensemble du projet, côté logements comme côté bureaux, donne à voir un savant emmêlement de pièces aux proportions justes et répondant aux exigences de leur fonction.

Anne-Laure Iger