Agence Dexia de Visé

Banques

1998 - 2004 1998 - 2004 1998 - 2004
Réalisé

La réalisation s'inscrit dans l'initiative de la société bancaire Dexia destinée à créer de nouvelles agences, aussi bien en Wallonie qu'en Flandre, en faisant appel à des architectes émergents pouvant renouveler l'image de la société en questionnant la typologie et les rapports avec le public qui la fréquente. 

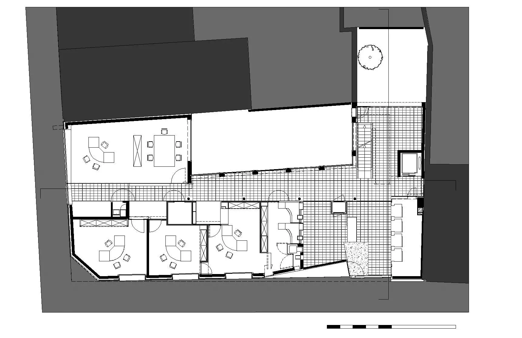
Le projet se situe en bordure de la place principale de Visé, sur un coin d'îlot qui permet de travailler la volumétrie dans sa dimension sculpturale tout en gardant un profil qui s'inscrit dans les gabarits homogènes du contexte. Les grandes baies carrées des bureaux réfléchissent les détails des bâtiments voisins tout en installant un rythme élégant à la construction. L'habillage extérieur en briques foncées s'accorde avec la couleur de la toiture en donnant lieu à un volume cohérent et abstrait. 

La force de la masse valorise les ouvertures, en particulier l'accès qui se situe dans un pli de la façade la plus longue, traité par une porte dessinée par l'architecte. Depuis la salle des guichets et des automates, la cour intérieure est perceptible par les utilisateurs, traitée comme un jardin minéral. 

Les murs mitoyens de la cour, peints en blanc, valorisent les façades internes de la banque, une installation riche en émotions visuelles et plastiques. à l'intérieur, grâce à la rencontre de la géométrie des rues avec celle irrégulière de l'îlot, les séquences de surfaces vitrées et la mise en scène des perspectives fuyantes confèrent à l'espace de travail une atmosphère riche et dynamique.

Maurizio Cohen

Sources
«Georges-éric Lantair. Banca în Visé» dans Architectura, n° 37, août-septembre, 2005, p.82-85.
Pieters Dominique, «Geërodeerde Kubus» dans de Architect, n° 10, octobre, 2004, p.72-75.
Cohen Maurizio, «Composition urbaine» dans A+, n° 191, décembre-janvier, 2004 -200, p.30-31.