Maison Dormal-Vandermeuren

Habitation unifamiliale

1990 - 1991 1990 - 1991
Réalisé

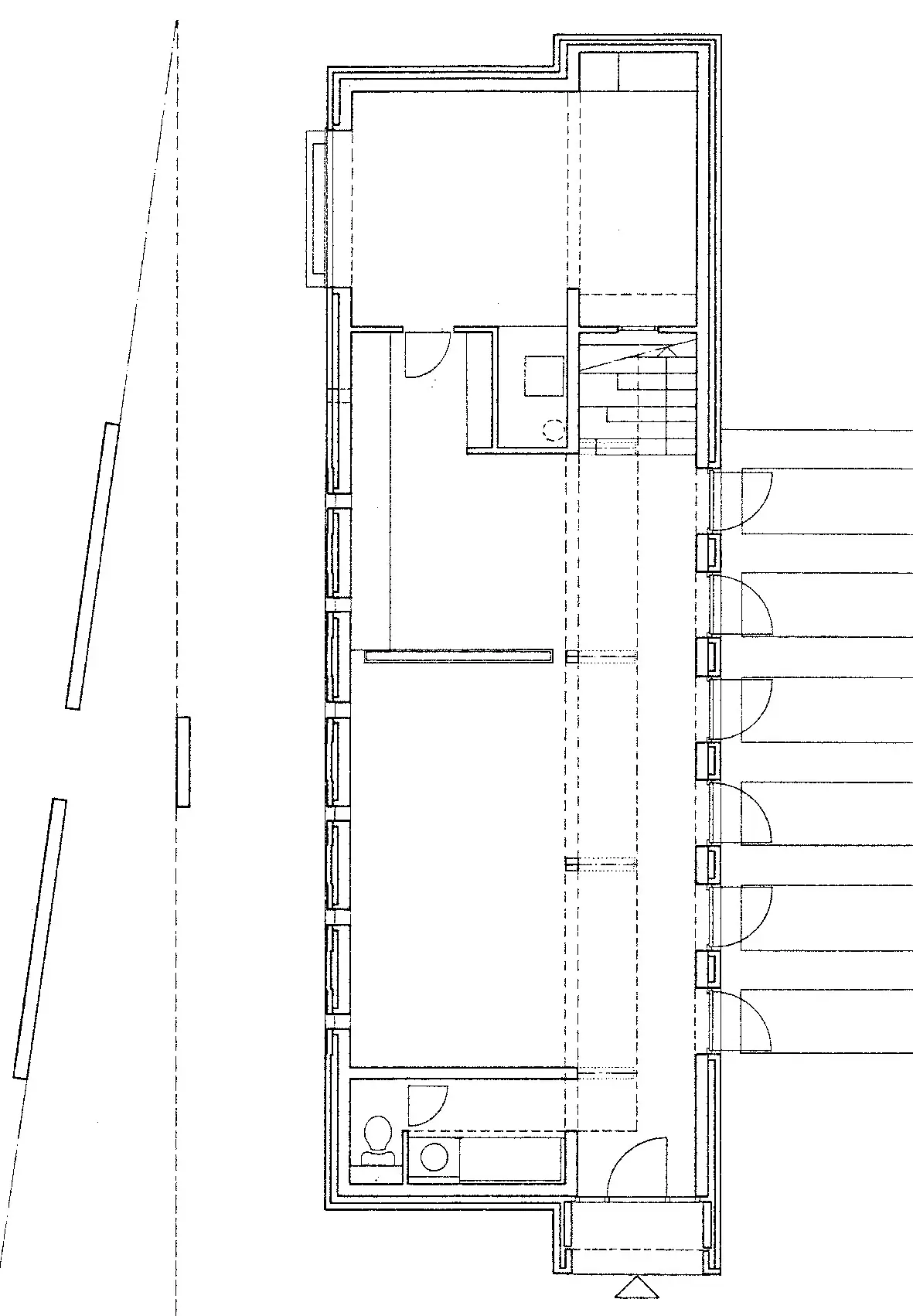
Le maître d'ouvrage souhaitait « une maison longue et romane ». De l'architecture romane, l'architecte Mario Garzaniti a interprété les concepts de lumière, de rythme, de temps. Il a conçu une habitation qu'il définit comme « un parallélépipède rectangle de briques strictement chapeauté par un prisme de tuiles rouges ». 

Le bâtiment est très fermé au nord, percé de six meurtrières permettant de voir sans être vu. La façade opposée comporte autant de baies, nettement plus larges, pour profiter du paysage. À l'intérieur, un déambulatoire distribuant les fonctions s'installe le long de la façade sud qui, grâce à la lumière naturelle et aux ombres portées, devient un cadran solaire géant. À l'étage supérieur, une coursive très légère distribue les zones de nuit, elle permet de préserver les perspectives.

Anne-Catherine De Bast

Sources
Wallonie nouvelles architectures.