Le Grand Bazar
Jalon XX

Magasins

1939 - 1939 - 1939 -
Réalisé

En 1899, l'immeuble accueillant le premier Grand Bazar fait l'objet d'une transformation profonde sur les plans de l'architecte Charles Thirion. Cette première  transformation, d'inspiration Art nouveau, présente une façade en verre et en acier sur cinq travées et trois niveaux. 

En 1907, à la suite d'un premier incendie, une seconde rénovation et importante extension vers la rue Coronmeuse est réalisée par l'architecte Closson. Cet immeuble éclectique moins novateur déploie en son cœur un atrium lumineux sur quatre niveaux sous une verrière métallique. 

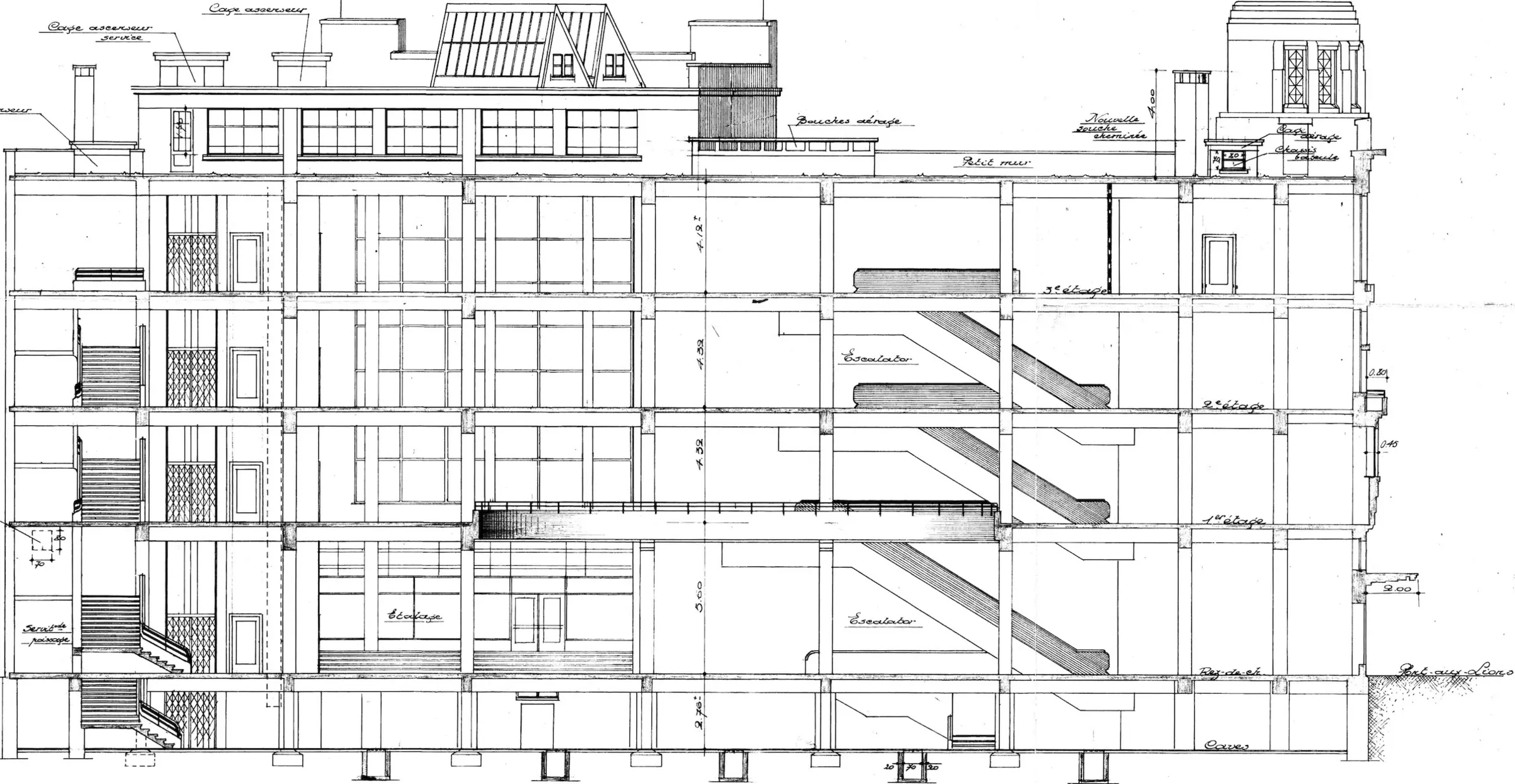
En 1939, un second incendie, plus important, mène à la destruction complète de cet édifice. Le Grand Bazar est alors reconstruit sur les plans des architectes Burguet et Closson dans un style moderniste admirablement maîtrisé, teinté d'Art déco. Le volume principal de l'immeuble occupe toute la largeur de l'îlot faisant front à la place Verte. Il s'étend aussi en Crapaurue avec une façade monumentale qui présente un mur-rideau continu sur trois niveaux. 

Le bâtiment  présente une ossature de colonnes et dalles en béton armé pour un total de 8.500 m² sur six niveaux. L'horizontalité affichée du bâtiment est permise par ces dalles qui supportent les larges bandeaux de briques qui s'expriment en façade. Les colonnes de béton rythment les façades en second plan pour compléter la forte expression architectonique de l'édifice. 

Au large espace vertical intérieur situé sous la verrière du précédent édifice incendié succèdent de vastes espaces commerciaux, étirés librement et conçus pour offrir la meilleure découverte des magasins aux futurs clients. Les espaces intérieurs sont richement décorés et équipés. Les généreuses prises de lumière naturelle ne sont exploitées que partiellement et les aménagements intérieurs sont dominés par la maîtrise de l'éclairage artificiel. 

Les vitrines qui s'étendent à l'extérieur sous une fine casquette de béton sont conçues par la société bruxelloise Fred Sage &Cie. Il s'y concentre une impressionnante palette de matériaux : acier inoxydable, bouleau de Finlande, portes en teck de Moulmein, ivoire, travertin, zinc et bronze.

Depuis, l'édifice a connu une modernisation des circulations verticales et une extension vitrée en toiture. En 2015, l'ensemble a été acheté par la Ville et le centre administratif communal y prendre place à l'horizon 2026. Voir aussi le siège moderniste de la FGTB, Pont aux Lions, n° 23, et la Galerie des deux Places. 

Sylvain Marbehant

Sources
Flouquet Jean-Louis, «La reconstruction du grand Bazar à Verviers» dans Bâtir, n° 87, 1940, p.55-60.