Cité des Hougnes
Jalon XX

Logement public

1921 - 1925 1921 - 1925
Réalisé

La réalisation de la cité-jardin des Hougnes s'inscrit dans une politique de développement du logement social au lendemain de la Première Guerre mondiale. Créée en 1919, la Société nationale des habitations à bon marché (SNHBM) soutient les initiatives locales en faveur d'un logement décent pour tous. 

À Verviers, c'est en 1921 que la première opération d'envergure voit le jour avec la construction de cinquante-neuf logements sur les hauteurs de la ville, un projet porté par la société de logements "La Régionale verviétoise". 

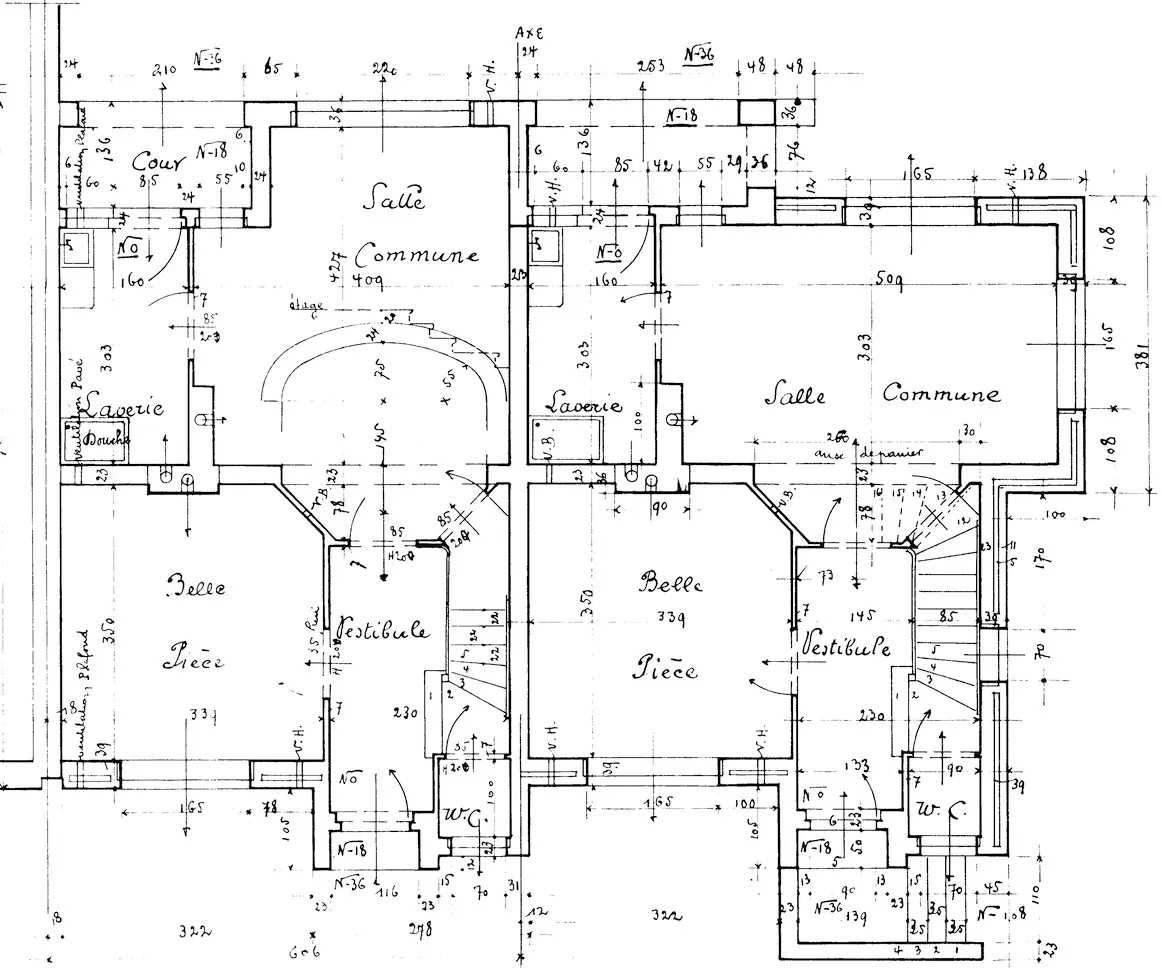
Répondant aux recommandations de la SNHBM, le jeune architecte Carlos Thirion privilégie le modèle de la cité-jardin, articulant les habitations en retrait de voirie derrière un petit jardin et autour des cheminements sinueux caractéristiques de nombreuses cités-jardins à Bruxelles

Les maisons disposent de deux grandes pièces communes et d'une laverie au rez-de-chaussée et de trois chambres (parfois quatre) à l'étage. L'ensemble répond aux exigences de la SNHBM et s'inscrit dans une dimension économique et hygiéniste. Notons toutefois que les logements ne disposent pas encore d'une salle de bains dédiée, un équipement qui ne se généralisera qu'après la Seconde Guerre mondiale. 

On peut noter du même architecte l'ensemble d'habitations ouvrières, rue du Paradis, 150-242 à Hodimont (1925).

Sébastien Charlier

Sources
Thirion Charles Gustave, «Le quartier-jardin des Hougnes à Verviers» dans L'Habitation à bon marché, n°7, 1925, p.121-130.
Archives communales de la Ville de Verviers..