Maison Derwael et Frans

Habitation unifamiliale

1954 - 1957 1954 - 1957
Réalisé

Ces deux maisons sont situées sur une crête face au paysage qui s'ouvre à l'ouest vers la vallée et la ville de Liège et le long d'une route qui mène au couvent et à la basilique des Carmes de Chèvremont, bâtis au XIXe siècle. 

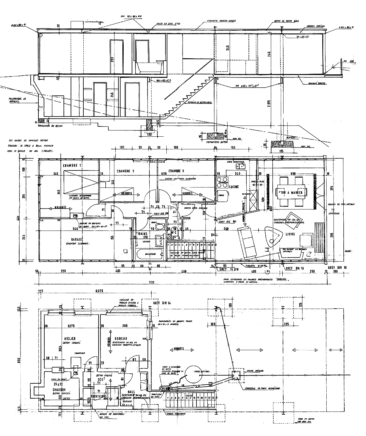
La maison Derwael est un des plus intéressants exemples de construction en ossature métallique de la région. Pendant les années 1950, l'architecte Jules Mozin va expérimenter plusieurs fois cette technique, notamment pour la construction de sa propre maison à Liège. En profitant de la pente du terrain, la maison se présente comme un parallélépipède suspendu sur des colonnes et projeté en porte-à-faux ; les parois extérieures du volume sont réalisées en panneaux de Durisol. 

La construction est essentielle et rappelle les expériences américaines des Case Study Houses, mais surtout un célèbre projet de 1934 de Mies van der Rohe pour une Maison de verre sur une colline. La configuration intérieure est déterminée par le séjour disposé au bout du volume pour profiter de la vue ; la façade se termine avec une grande terrasse qui accentue la relation au paysage. 

La maison voisine est réalisée par son associé Charles Carlier. La disposition est similaire, mais il s'agit ici plutôt de deux volumes parallélépipédiques superposés, celui au-dessous débordant en accentuant la projection vers les vues extérieures. La structure est en béton, matériau que Carlier privilégie dans ses projets, qui sont inspirés plutôt des maisons de l'architecte australien Harry Seidler, souvent publiées dans la presse spécialisée belge de l'époque. La façade vers la vallée se termine avec une loggia.

Maurizio Cohen

Sources
Horta and after : 25 Masters of Modern Architecture in Belgium, Gand, Université de Gand, 1999, p.176-191.