Vertefeuille
Immeuble à appartements Homes / Maisons de retraite
2004 - 2013
2004 - 2013
2004 - 2013
2004 - 2013
2004 - 2013
Réalisé
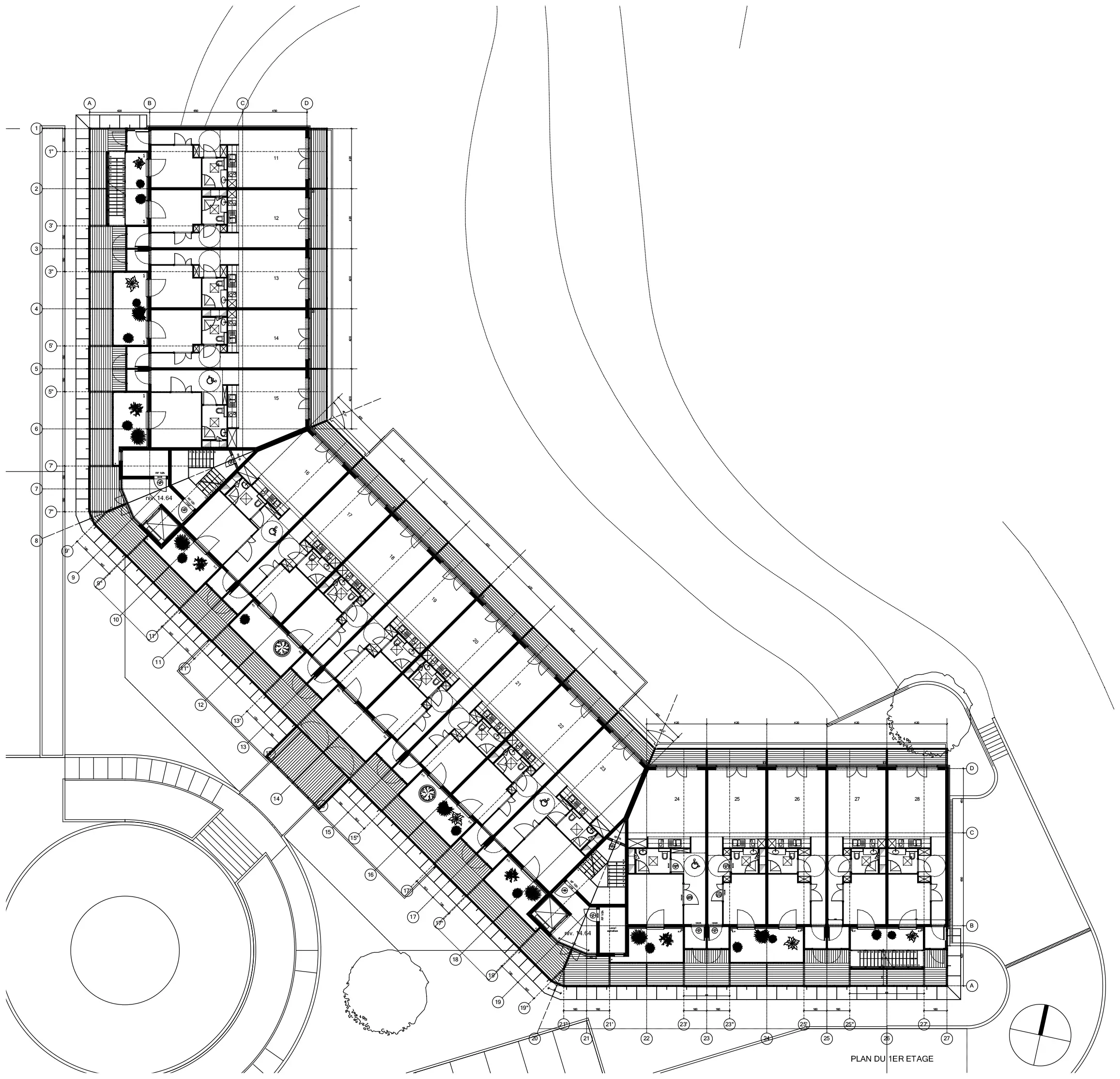
Située en périphérie urbaine, la Vertefeuille regroupe une maison de repos de cent cinquante lits et un immeuble de soixante-quatre logements au sein d'un parc de 8 ha. Inscrit sur les traces d'un ancien couvent, le bâtiment principal s'implante de façon à donner à tous les résidents une vue dégagée sur le paysage. Les appartements, tous traversants, sont desservis au nord par une coursive collective et profitent de balcons privatifs au sud. La coursive forme un espace tampon, clos, mais non chauffé, le long de la chaussée de Renaix. Côté rue, un écran transparent la protège des intempéries. Côté résidence, une série de box en bois donne accès aux habitations. Entre les box, une trémie toute en hauteur dégage un vide pour la circulation de l'air et le développement de plantations. Un microclimat se crée, résultat d'une réflexion spécifique en matière d'énergies renouvelables. Quelques terrasses communes sont suspendues à la structure métallique de la coursive, elle-même fixée ponctuellement sur la construction de béton principale.
Charlotte Lheureux
| Sources |
|---|
| Masson Olivier & Vanneste Damien, Habitat et vieillissement : inventaire des formes de logements qui supportent linterdépendance et lautonomie des seniors, Louvain-la-Neuve : UCL, 2015. |
| «Journée du patrimoine contemporain» dans Le Soir Immobilier, 25 août, 2009. |
| Architecture contemporaine en Wallonie picarde, Journée de larchitecture 2011, Willaupuis : WAPICA, 2011. |