Silos des cimenteries Dapsens

Autres bâtiments industriels

Réalisé

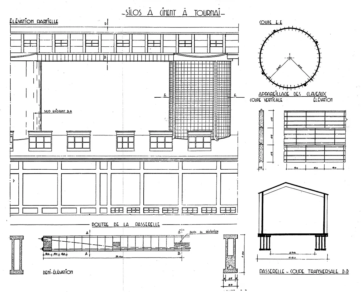
Les silos à ciment bordant l'Escaut constituent vraisemblablement la plus ancienne application existante de la technique du béton précontraint en Belgique. 

Curiosité internationale à l'époque de leur construction, les quatre premiers silos présentent des dimensions impressionnantes (8 m de diamètre, 16,72 m de hauteur et 12 cm d'épaisseur). Ils sont réalisés au travers de claveaux préfabriqués assemblés par une précontrainte circonférentielle, empêchant le développement de tout effort de traction. Cette technique de construction a été brevetée par l'entreprise de construction bruxelloise Blaton-Aubert en mars 1942, laquelle a construit cet ouvrage en seulement cinq mois (de mars à juillet 1943). La passerelle reliant ces silos aux quatre autres construits en 1925 (en béton armé) est également en béton précontraint. Les quatre poutres de 18,5 m qui la constituent sont réalisées par assemblage en post-tensioning de voussoirs préfabriqués.

La précontrainte par post-tensioning est réalisée au moyen de câbles en acier passant à l'intérieur des claveaux et ancrés aux extrémités de la poutre : on parle de précontrainte « externe » au béton, et il s'agit, là encore, d'une première mondiale. Ces poutres ont été mises en place en décembre 1943 par la même entreprise. Aujourd'hui inoccupé, l'édifice constitue un témoin unique de notre patrimoine industriel.

Bernard Espion

Sources
Magnel Gustave, Le béton précontraint, Gand : Editions Fecheyr, 1948, p.185-187 ; 377-379.
Fonds Blaton, AAM.
Proceedings of the Fifth International Congress on Construction History. Vol. 2, Chicago, IL., USA : Construction History Society of America, 2015, p.41-48.