Parc de la Drève

Immeuble à appartements

1978 - 1996 1978 - 1996
Réalisé

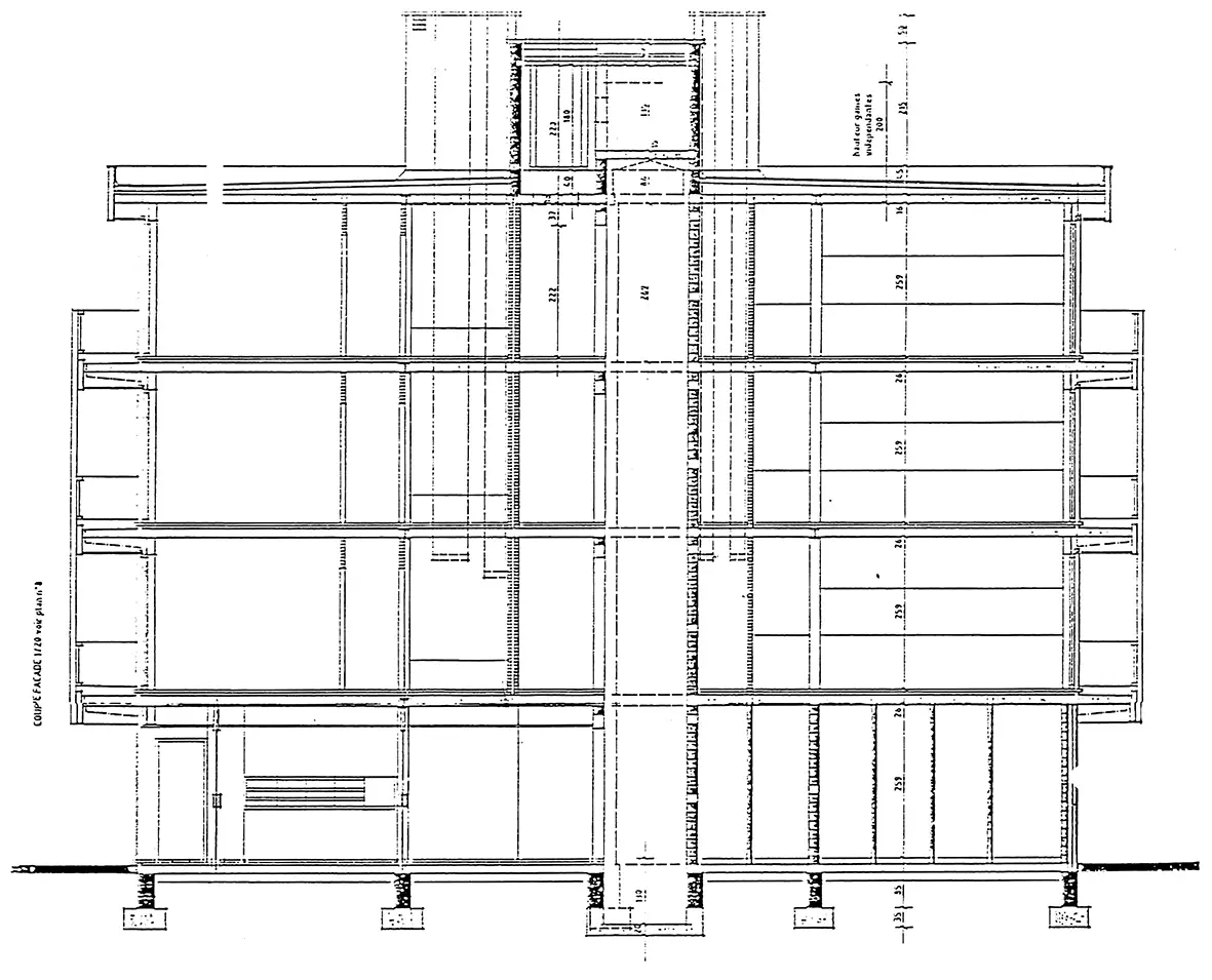
Implanté en bordure de ville, cet ensemble résidentiel s'étend sur un parc de 2 ha, formant l'angle de deux chaussées importantes. L'opération commence à la fin des années 1970 par la construction d'une barre de logements le long du premier axe routier, et de trois immeubles en plots indépendants vers le second, sur les cinq prévus initialement. La cessation d'activité de l'entreprise entraîne effectivement l'arrêt du chantier, sans que soit achevé le projet. Celui-ci ne verra son aboutissement qu'une vingtaine d'années plus tard, à la suite de la sollicitation de la jeune entreprise Devos par l'architecte Fournier. De l'une à l'autre phase, aucune différence n'apparaît autre que l'amélioration des critères d'isolation et quelques détails techniques. Nommées de A à F, les constructions présentent les mêmes gabarits compacts aux allures de cube ramassé, les mêmes balcons filant sur tout le périmètre, les mêmes compositions de façade superposant régulièrement les baies vitrées. On retrouve jusqu'au meneau traversant les étages et jusqu'à la brique peinte en blanc. Simples et pragmatiques, les plans sont à l'image de l'ensemble du projet, dont l'enjeu principal est d'offrir un maximum d'espace à chacun, tout en respectant une grande économie de moyen.

Charlotte Lheureux

Sources
Archives de Eddy Devos SA.