D'emblée, la pureté des lignes géométriques de cette habitation, tant en façade qu'en plan, convie à une lecture aisée de cette architecture et à son inscription dans le mouvement moderne. L'ordonnance de l'ensemble, accessible, cohérente et fonctionnelle, est renforcée par un parti constructif simple, lequel repose sur les proportions de l'homme et invite à une appropriation aisée de l'espace.
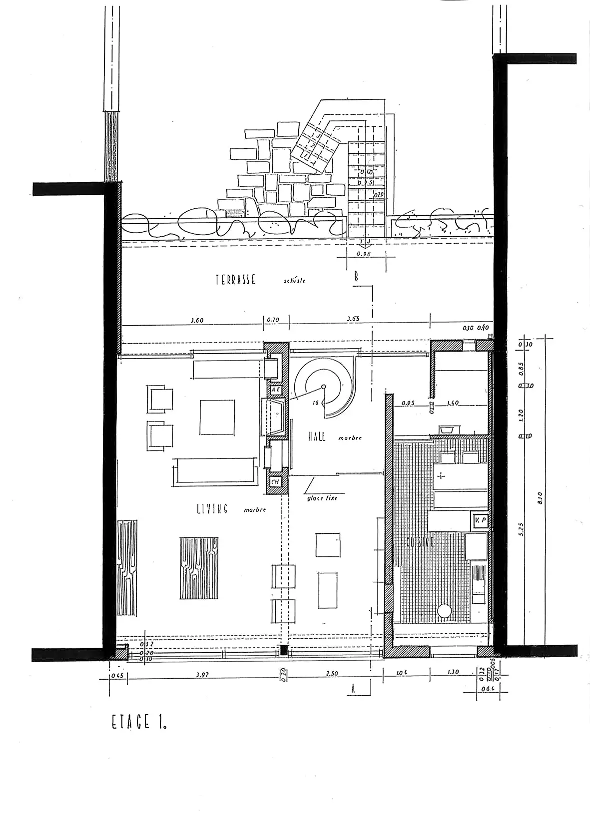
« L'étude du plan est majeure pour Robert Schotte, il y recherche une image claire, une distinction sans ambiguïté des circulations et fonctions, structurées par le croisé d'horizontales et de verticales dont il ne se départit jamais », nous dit le plasticien Florent Soris. Le hall et l'escalier central, tant au rez-de-chaussée qu'aux étages, distribuent pragmatiquement les différentes pièces. Le mur de refend, amorcé dès l'entrée et poursuivi vers le séjour, ajoute à la transparence en invitant à la traversée des pièces et du jardin, d'une part, et à regarder vers l'Escaut et la cathédrale, d'autre part.
Traduisant un projet sobre et rigoureux, la façade est composée de manière géométrique, en faisant usage de formes rectangulaires et carrées. Un enduit de teinte blanche dessine un fond homogène sur lequel se découpe un ensemble vitré à dominante horizontale. La structure de la construction s'y dévoile : on voit apparaître le système poteaux-poutres de béton entre les baies. Isolée, une petite fenêtre carrée signale la cuisine. Le bandeau vitré du deuxième étage met en retrait les fenêtres des chambres et souligne la corniche. Cette œuvre aux formes simples s'affirme et s'intègre remarquablement dans l'ensemble éclectique des façades du quai Dumon.
Béatrice Renard
| Sources |
|---|
| «Le Hainaut occidental a son prix darchitecture» dans La Libre Belgique, 12 janvier, 1992. |
| Soris Florent, «Larchitecte Robert Schotte» dans A+, n° 122, mars, 1993, p.46-47. |
| Courtois Robert, «Prix darchitecture du Hainaut occidental Session 1992 : remise publique» dans A+, n° 120, 1993, p.40. |
| Année | Prix | Distinction |
|---|---|---|
| 1992 | Prix d'Architecture de l'ARAHO (Association des architectes du Hainaut occidental) | lauréat |