Maison Béghin
Jalon XX

Habitation unifamiliale Bureaux

1970 1970
Réalisé

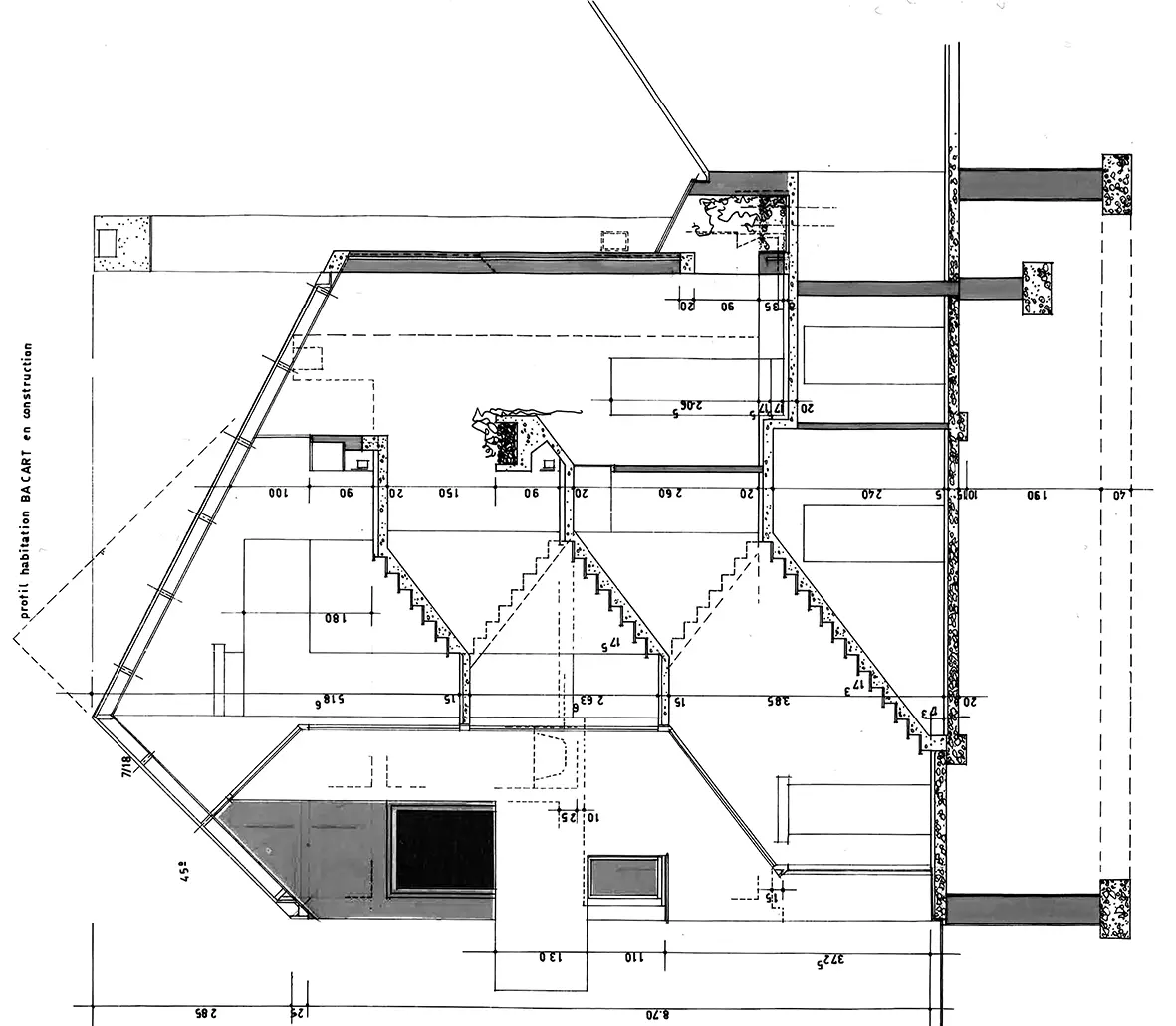
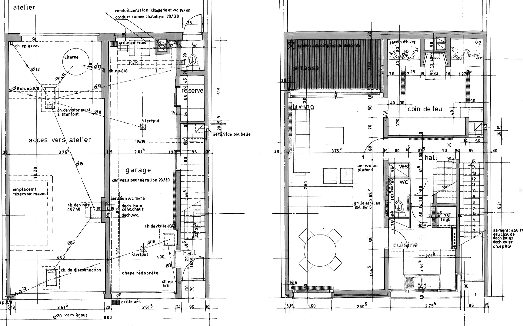
La lumière est un élément essentiel de cette habitation de rangée, où l'éclairage naturel génère des atmosphères diversifiées. Depuis l'entrée jusqu'au sous-toit, une faille vitrée longe le mur mitoyen, donnant à lire l'ensemble des quatre niveaux de la construction. La lumière matinale s'y glisse et pénètre la bâtisse en profondeur, jusqu'au coin du feu. Ouvert sur trois niveaux qui sont isolés par quelques marches, celui-ci se situe à l'articulation de tous les espaces. Le plan s'organise en deux travées de 4 m. Le rez-de-chaussée accueille bureau et garage. Le premier étage distribue les lieux de vie. Au deuxième étage et sous les combles sont implantés les chambres, les salles d'eau et le bureau. Côté rue, l'identité de la construction est renforcée par un enduit homogène. Une composition géométrique jouant sur l'avancée et le retrait de volumes donne une épaisseur à la façade et lui prête son expression moderniste. Des fenêtres verticales distribuent une lumière rasante à l'intérieur des locaux. Côté cœur d'îlot, trois terrasses suppléent à l'absence de jardin. 

Béatrice Renard

Sources
Archives d'André Béghin.