La Coopérative

Habitat groupé

2006 - 2010 2006 - 2010 2006 - 2010 2006 - 2010
Réalisé

L'histoire du projet commence par l'acquisition d'une ancienne boulangerie industrielle (la coopérative L'Avenir) par les deux architectes et l'un de leurs amis. L'endroit est abandonné depuis plusieurs années ; l'idée est de lui redonner vie à partir de trois grands principes : la réalisation d'un investissement immobilier, la construction de logements de qualité (vis-à-vis des critères de confort et de développement durable), la concrétisation d'un idéal de mixité (dans ses aspects fonctionnel, typologique et social). 

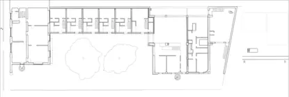
Le site ayant subi de nombreuses transformations depuis son origine, le premier travail consiste à évacuer les constructions parasites et à dégager du vide pour les espaces paysagers. La parcelle est ensuite divisée en fonction des activités prévues : les bureaux à l'avant, les duplex au centre, les lofts à l'arrière. 

D'un bout à l'autre de l'opération, les acteurs privilégient des solutions rationnelles, fonctionnelles et durables, dans un contrôle strict du budget. Parmi les dispositifs économes d'énergie : des matériaux écologiques, des panneaux solaires et des citernes de récupération des eaux de pluie. Seule façade d'origine encore visible, le front de rue est entièrement ravalé. Sa teinte foncée dénote parmi la rangée de briques rouges. 

Au sein de la parcelle, les constructions sont enveloppées d'une seconde peau isolante. La structure acier et brique du volume intermédiaire se double notamment d'un bardage bois d'essence locale. Conçus comme autant de boîtes indépendantes, les logements présentent une unique ouverture frontale à l'étage, complétée par l'éclairage zénithal de la toiture en shed.

Charlotte Lheureux

Sources
Mees Gr. & Slaets P. & Vanhove T., Bâtir à bon budget, Houtvenne : Éditions 2voor5, 2009.
Breuls Virginie & Geelkens Mélanie, 20 histoires de rénovation, Namur : Cluster Eco construction, 2014.
Brandajs Laurent & Debusschere Stephan, Architecture : Les nouveaux talents, Bruxelles : Éditions Racine, 2011.
Année Prix Distinction
2011 Prix d'Architecture transfrontalier primé