Institut Technique des Métiers de l'Alimentation (ITMA)
Ecoles secondaires
1974 - 1980
1974 - 1980
Réalisé
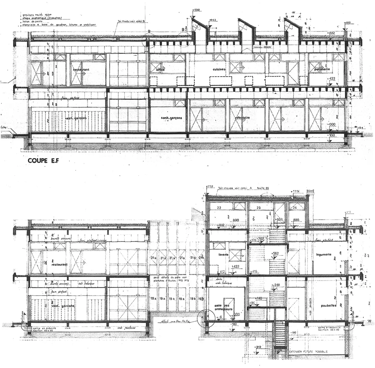
Implanté entre un bâtiment moderne préfabriqué (1972) et un bâtiment vernaculaire construit a posteriori (1993), l'édifice accueille la section cuisine de l'institut. Son rez-de-chaussée est organisé de part et d'autre d'une promenade rythmée par une structure apparente et reliant les bâtiments du site entre eux. Cette promenade dessert un hall d'accueil ouvert et un patio central orné d'un relief réalisé par le céramiste Owczarek. L'emprise au sol étant limitée, les cuisines et le restaurant didactique sont positionnés à l'étage. Pour que ce dernier réponde à la vocation pédagogique, il s'est agi, lors de la conception, de dessiner « un vrai beau restaurant moderne permettant l'immersion de l'étudiant » (B. Lepers). Pour cette raison, l'accès à la salle se fait directement de l'extérieur par deux escaliers monumentaux. Les finitions intérieures y sont particulièrement fastueuses (plafond réfléchissant en cuivre). L'enveloppe, entièrement vitrée, est parée d'une interface en béton préfabriqué qui « transforme le paysage, lui donne un cadre ». De l'extérieur, flottant en porte-à-faux au-dessus d'un socle en briques, ce couronnement signale le caractère précieux de la fonction qu'il recèle, à la manière des péristyles classiques. Dans une perspective historique, les trois bâtiments présents sur le site (dépouillement, retour à l'ornement, retour au vernaculaire) illustrent bien la mutation esthétique opérée en deux décennies sur notre territoire.
Jean-Jacques Jungers
| Sources |
|---|
| «ITMA - Tournai» dans Béton, n° 61, juin, 1981, p.47. |
| Archives de Philippe Carbonnelle. |