Home du Moulin à Cailloux

Logement public

1968 - 1976 1968 - 1976 1968 - 1976
Réalisé

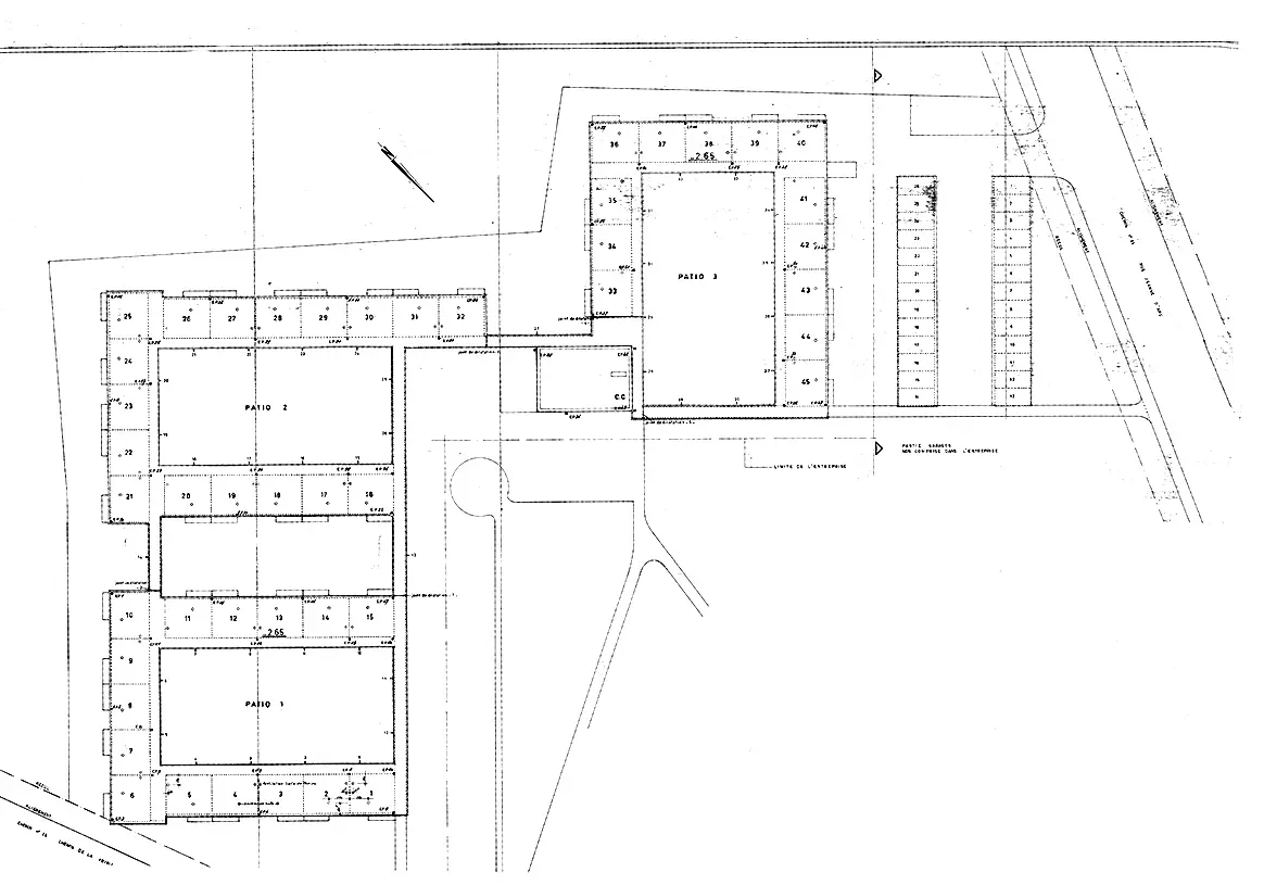
L'opération regroupe un ensemble de quarante-cinq logements pour personnes âgées, situés à l'orée de la ville. Les studios, tous traversants, s'ouvrent vers les champs, selon une orientation nord-sud ou est-ouest. La construction s'organise de plain-pied autour de quatre espaces verts centraux (essentiellement de grandes pelouses). Ces espaces sont entourés de coursives collectives permettant aux résidents de profiter des jardins, tout en étant protégés des intempéries. Le traitement des volumes est des plus simples, de même que la mise en œuvre, traduisant un modernisme sobre. La disposition des ouvertures suit un schéma sériel. Le parement de briques peint en blanc alterne avec des châssis en menuiserie de bois. Le tout est couvert d'une toiture-terrasse en béton. Une pièce commune associative, localisée à l'articulation des groupes d'habitation, abritait initialement une chaufferie partagée. Celle-ci a été remplacée depuis par des équipements individuels, et ladite pièce par un logement, sans doute pour des questions de non-usage. Si certaines interventions ponctuelles sont menées, l'ensemble mériterait une requalification, tant au niveau de l'espace bâti qu'au niveau de l'espace paysager.

Jacques Desablens

Sources
Archives de Jean-Marie Pirson.