Fédération des Métallos

Bureaux

1987 1987
Réalisé

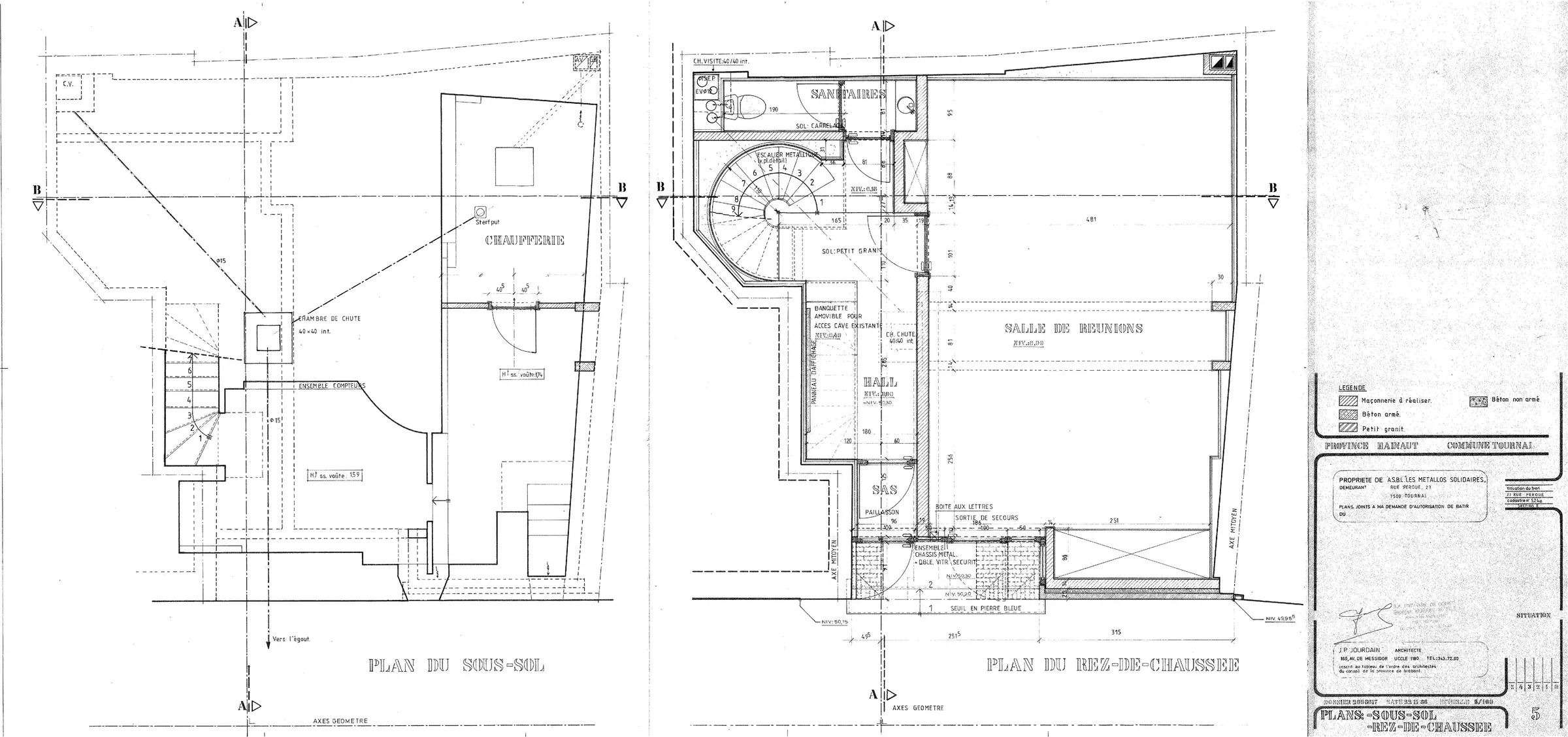
Préférant affirmer sa différence plutôt que simuler une ressemblance somme toute factice, l'ancienne Fédération des Métallos inscrit une architecture résolument contemporaine au sein du périmètre historique de la ville. Tant la volumétrie que la matérialité ou le rapport au contexte témoignent de l'appartenance au mouvement postmoderne : géométrie orthogonale et toiture à versants inversés, brique plate et châssis en métal coloré, repli sur soi et répartition radicale des pleins et des vides. Toutefois, cette forme originale ne résulte pas tant d'une volonté de se démarquer que de s'intégrer et de dialoguer avec les constructions environnantes. Aussi, l'érection d'une façade pleine éventrée sur toute sa hauteur répond au souci d'éclairer les espaces intérieurs malgré l'implantation sur une parcelle enclavée. L'oblique de la couverture entend, quant à elle, prolonger celle de l'ancienne caserne des pompiers (à droite) vers les appendices à toit plat (à gauche). On remarquera, enfin, le soubassement de pierre continu entre les façades des n° 29 et 27, vestige d'une ancienne bâtisse dont les caves ont été maintenues. Aujourd'hui réhabilitée en logement unifamilial, la Fédération des Métallos conserve son apparence d'origine.

Charlotte Lheureux

Sources
Puelo S., «Tournai : pastiche... ou création» dans Les Cahiers de l'Urbanisme, n° 1, juin, 1987, p.61-62.
Hamman D., Le Peuple, n° 1987.