En Transparence
Immeuble à appartements
2004 - 2005
2004 - 2005
2004 - 2005
2004 - 2005
2004 - 2005
Réalisé
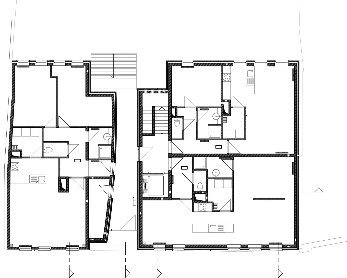
L'ouverture totale des pignons latéraux sud de cet immeuble à vocation sociale permet aux dix appartements de bénéficier d'un maximum de lumière. Afin de contrôler la chaleur et l'ensoleillement, les grandes baies sont doublées d'un pare-soleil en bois de cèdre. Celui-ci donne aux espaces intérieurs une ambiance variable au fil des saisons. Les habitants profitent ainsi de divers regards vers le quartier, sans que soit entachée leur intimité. La toiture, réalisée en zinc à joints debout, déborde légèrement sur une façade tout à la fois homogène, transparente et vibrante. Création originale, la grille d'entrée donne accès à un jardin commun via une ruelle couverte. Elle est constituée d'une tôle laquée dont les découpes au laser reprennent le motif de clous anciens croisés évoquant le martyr de Saint-Piat. Le nom des architectes et l'année de la construction y sont également mentionnés.
Jacky Legge
| Sources |
|---|
| Archives de l'Etat de Tournai. |
| Année | Prix | Distinction |
|---|---|---|
| 2007 | Prix d'Architecture du Hainaut | mention (Catégorie Logements collectifs) |