Archives de l'État
Bibliothèques, centres de documentation, centres d'archives
2006 - 2008
2006 - 2008
2006 - 2008
2006 - 2008
Réalisé
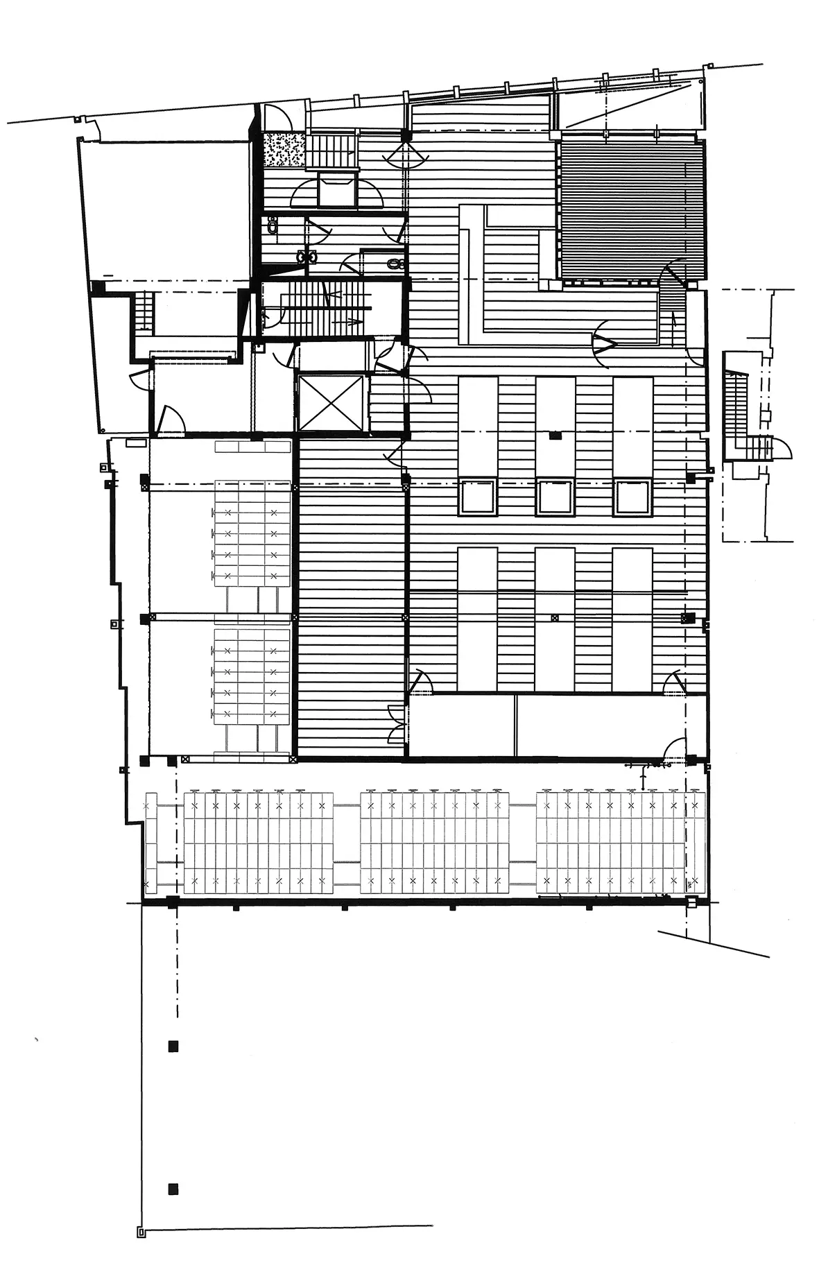
Les Archives de l'État s'installent dans l'un des établissements de l'îlot Casterman (dont un autre est réhabilité en logements collectifs par les mêmes architectes). Choisis pour leurs grands plateaux libres et leur capacité portante, ces anciens halls de production accueillent, outre les 12,5 km linéaires de stockage, une salle de lecture et des bureaux pour le personnel. L'idée est de préserver un maximum le caractère des lieux, faisant de leurs qualités autant d'outils pour le nouveau programme : les espaces visiteur et personnel se superposent dans le volume sous shed, l'un et l'autre liés par un patio en double hauteur. La structure (ossature béton et charpente métallique de type « Eiffel ») se dévoile sous une lumière naturelle diffuse, en même temps qu'elle se fond dans le décor sous une couche de peinture blanche. De grandes tables de chêne organisent la salle de consultation, sous le contrôle des bureaux répartis le long de la coursive. Il en ressort une atmosphère calme, flottante, propice à la concentration. Un monde hors du temps et de l'agitation extérieure, où l'intervention contemporaine, peut-être moins évidente, n'en célèbre pas moins le bâtiment d'origine. De l'autre côté du mur, où les matériaux et les couleurs se font plus nombreux, la nouvelle façade n'est autre qu'une application à la lettre de la proportion des pleins et des vides de la première construction.
Charlotte Lheureux
| Sources |
|---|
| Archives de l'Atelier 2F. |