Maison Noël

Habitation unifamiliale Ateliers d'artistes

1963 1963
Réalisé

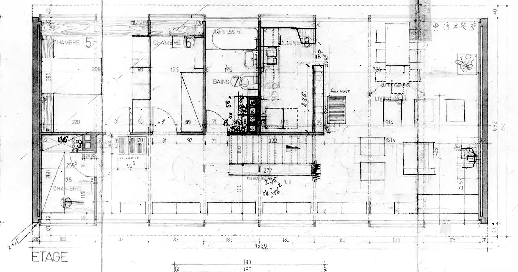
Le peintre d'abstraction géométrique Victor Noël fait l'acquisition d'un terrain situé en pleine campagne en 1961. Désireux d'y édifier son habitation privée et son atelier de travail, il s'adresse à l'architecte bruxellois Vancoppenolle, dont il apprécie la sobriété des compositions et les principes d'économie. Celui-ci dessine un volume parallélépipédique isolé sur ses quatre faces et parallèle à une voie à forte circulation. Côté champ, la façade sera animée par de nombreuses fenêtres, dont une sur deux est suspendue à un rail extérieur pour l'ouverture. Côté chaussée, la façade est marquée par un grand mur comportant la porte d'entrée, la porte de garage et, à l'étage, huit fenêtres consécutives sous corniche, équipées du même principe de rail. Afin de dégager les murs des pièces de vie, deux fournaises sont intégrées au plancher. Les surfaces intérieures sont en briques apparentes peintes en blanc, principe retenu pour les façades, mais qui ne sera finalement pas appliqué : celles-ci gardant l'apparence du matériau brut (jusqu'à leur mise en peinture récente).

Jacky Legge

Sources
Jean Vancoppenolle, architecte, 1968.
Archives de Jean Vancoppenolle.