Villa Samijn

Habitation unifamiliale

1971 - 1972 1971 - 1972 1998 1998 1998
Réalisé

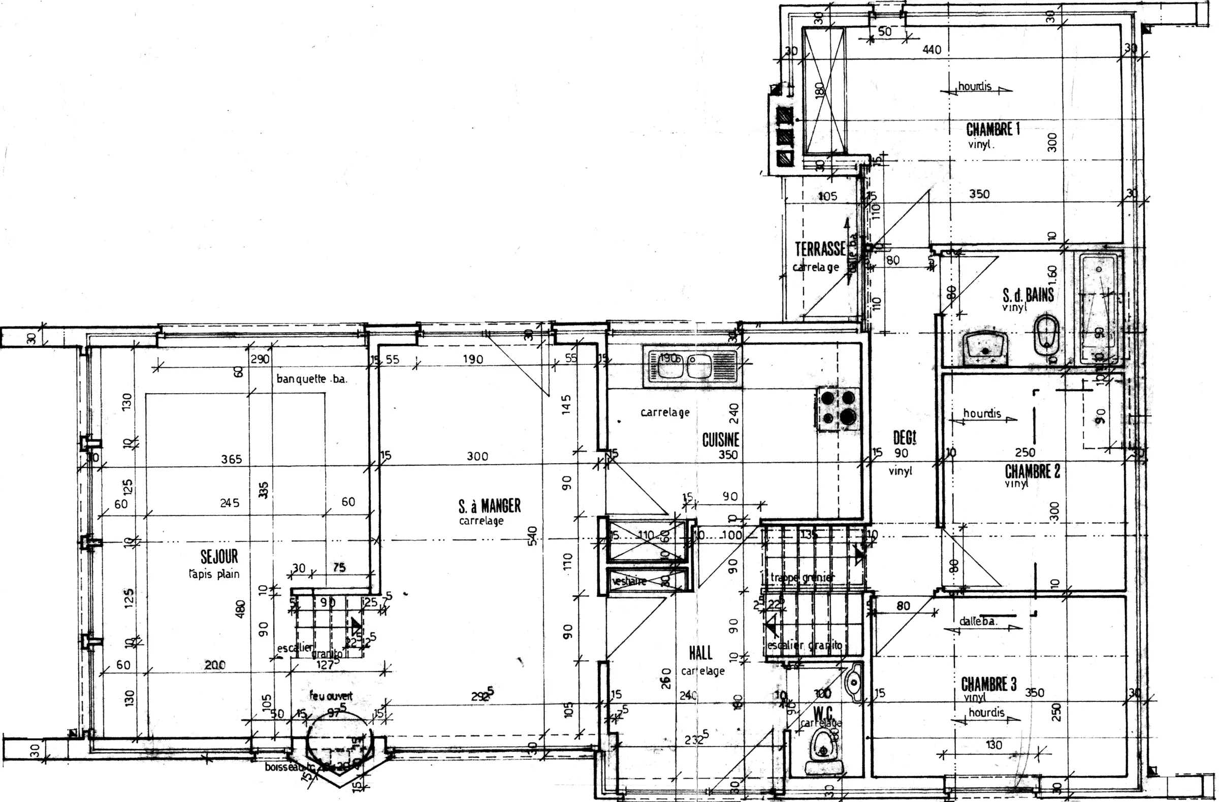
C'est le contexte arboré qui séduit les maîtres d'ouvrage dans le choix de cette parcelle. Selon la volonté de ces derniers, l'architecte porte une attention particulière au léger devers du terrain, dont il transcrit le différentiel au sein de la villa. Aussi, le séjour s'organise en deux demi-niveaux, assemblés autour d'une cheminée centrale. Les relations vers le jardin arboré sont particulièrement fortes dans cette pièce, où une série de vitrages inscrits dans le plan des pentes de toiture amène une lumière rasante. Vingt ans après sa construction, une requalification tend à augmenter davantage encore la spatialité interne, sans modification de l'enveloppe. Le bâtiment conserve sa silhouette triangulaire atypique, sa toiture d'ardoises à double versant (dont le pan principal couvre trois travées) ou encore sa composition orthogonale, alliant parement de briques blanches et grandes baies vitrées.

Jacques Desablens

Sources
Archives de Pierre Petit.