Maison André

Habitation unifamiliale

2005 - 2008 2005 - 2008
Réalisé

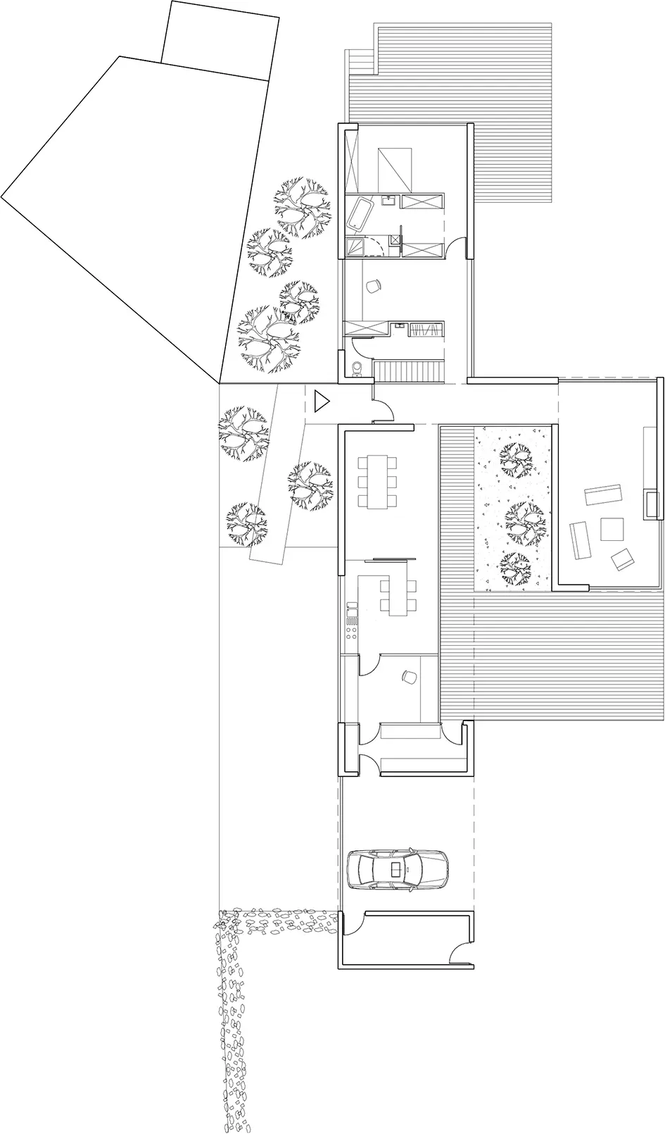
Insérée entre paysages construit et naturel, l'habitation présente deux visages : l'un, fermé, accompagne le front bâti et la perspective de la chaussée ; l'autre, ouvert, fait le lien entre les espaces de vie et les champs alentours. Les deux faces n'en sont pas moins liées par une écriture simple et épurée, favorisant l'intégration aux corps de ferme environnants. Depuis la voie publique, la bâtisse prend la forme d'un long parallélépipède de briques blanches. Clairement dissociée, une toiture à double versant y est simplement déposée, salut ironique aux prescriptions urbanistiques. À l'arrière, un second volume, réservé au salon, se connecte via un pont vitré. Le dénivelé important du terrain est mis à profit dans l'agencement des espaces, offrant des rapports divers au contexte immédiat. Il permet notamment la création d'un étage supplémentaire sous le niveau de la chaussée, d'où le bâtiment apparaît comme de plain-pied.

Charlotte Lheureux

Sources
Archives de ZigZag Architecture.