Maison Bois du Cahu

Habitation unifamiliale

2012 2012
Réalisé

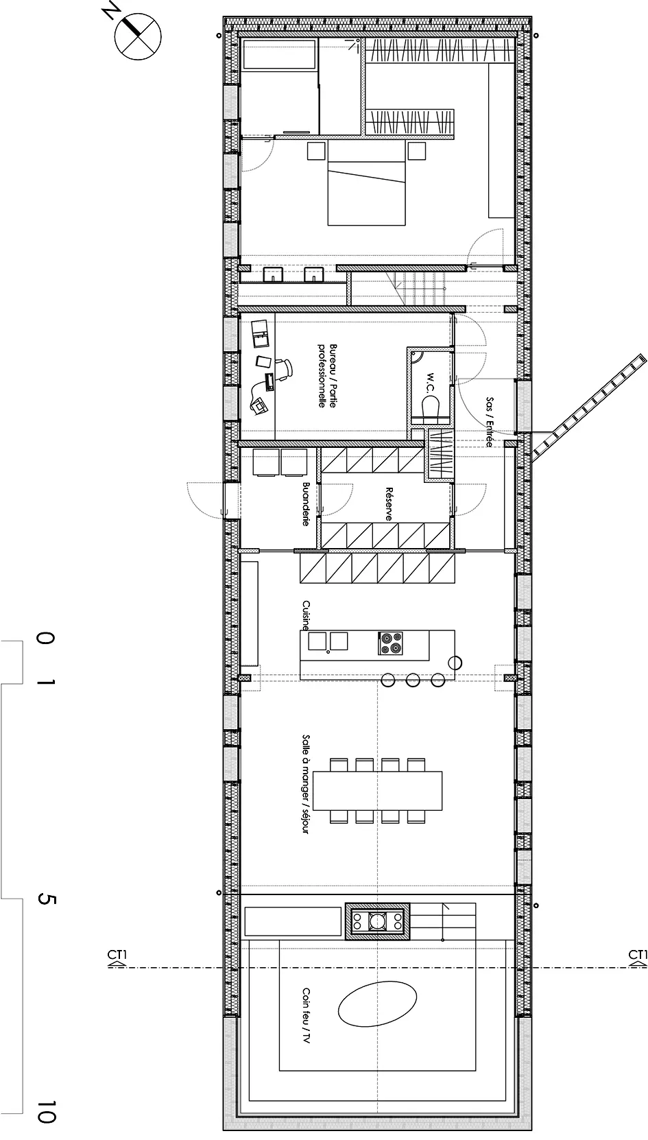
C'est dans le hameau de Quiévremont que le maître de l'ouvrage fait l'acquisition d'une propriété composée de bâtiments agricoles. Profitant du contexte rural, il souhaite établir une habitation à la fois généreuse et accueillante, évolutive et respectueuse de l'environnement. En très mauvais état, le bâtiment principal est démoli. La construction le remplaçant propose une volumétrie identique, mais au vocabulaire architectural renouvelé. Le foyer central, creusé dans le sol, dégage une vue à 180° pour capter le paysage. Au rez-de-chaussée, des bureaux et une chambre pour les parents avec ses commodités sont également prévus. L'étage est occupé par quatre chambres et sanitaires. De l'extérieur, la pureté volumétrique souligne l'horizontalité du paysage.

Éric Van Overstraeten

Sources
Archives d'Arcadus Architecte.