Maison Devray-Walther

Habitation unifamiliale

1967 - 1968 1967 - 1968
Réalisé

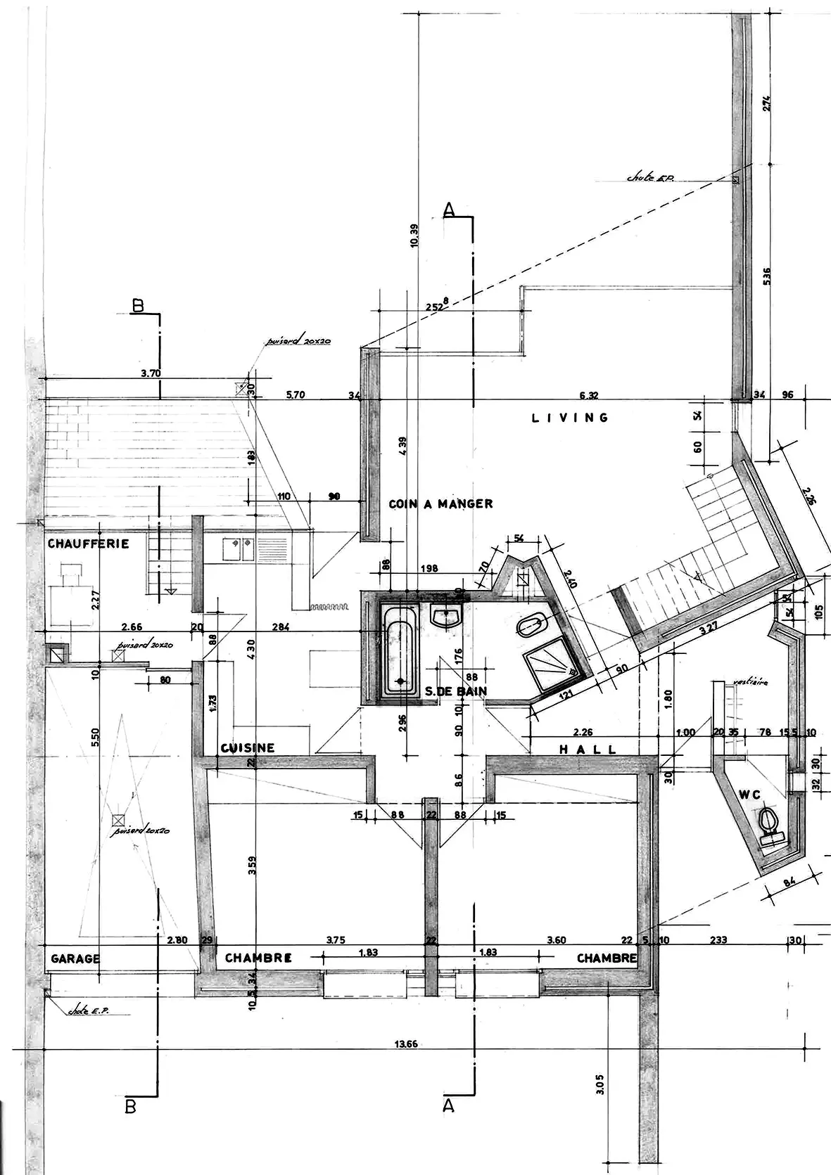
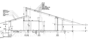
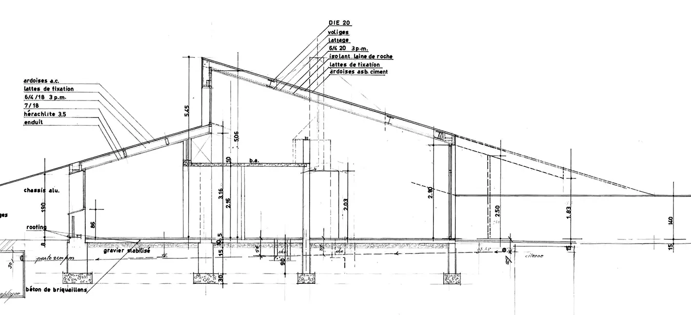
Le projet porte sur la réhabilitation d'une ancienne ferme, dont il ne reste que peu de vestiges lorsque les propriétaires décident d'y édifier leur future maison. Seul un petit volume est encore exploitable et abrite aujourd'hui les chambres. L'architecte part de ce modeste existant, autour duquel il développe un projet épuré, aux lignes soignées. Partant des contraintes d'orientation, il dessine une grande oblique, permettant aussi bien la pénétration de la lumière naturelle au sein des espaces de vie que le dégagement d'une vue vers le vieux moulin voisin (aujourd'hui obstruée par l'expansion du quartier). L'ensemble des espaces s'articule autour d'un noyau central, agrémenté d'un poêle. Initialement prévue, une mezzanine surplombant le séjour et l'éclairant à la tombée du jour n'a pas été réalisée.

Charlotte Lheureux

Sources
Archives d'André Béghin.