Maison Daupin

Habitation unifamiliale

2010 - 2016 2010 - 2016
Réalisé

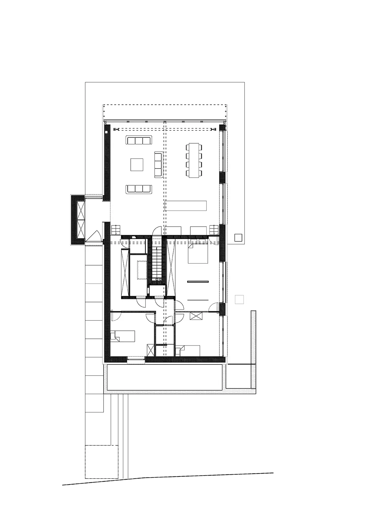
La maison s'inscrit au sein d'un quartier rural mêlant fermes typiques et pavillons récents. Considérant le profil pentu du terrain, une attention particulière est portée aux problématiques d'orientation et d'intégration. Aussi, la division en deux volumes superposés permet de suivre le mouvement des terres et de reprendre les différences de niveaux. Le plateau inférieur s'enterre partiellement et ne reçoit aucune pièce à vivre, uniquement les garages et techniques. Il sert de soubassement au volume principal et de support aux terrasses des chambres. Le plateau supérieur est accessible via un petit volume accolé et dégage un espace libre, offrant une ouverture maximale vers l'arrière. Seule cette partie est traitée selon les critères passifs. En mêlant le respect des reculs, des gabarits et des typologies voisines à la contemporanéité des matériaux et des mises en œuvre (acier Corten et continuité du bardage bois ajouré), le projet opte pour une réinterprétation de la fermette traditionnelle, dont on trouve quelques autres exemples récents dans la région.

Charlotte Lheureux

Sources
Archives de l'Atelier d'architecture Meunier-Westrade.