Maison Desmette

Habitation unifamiliale

1977 1977
Réalisé

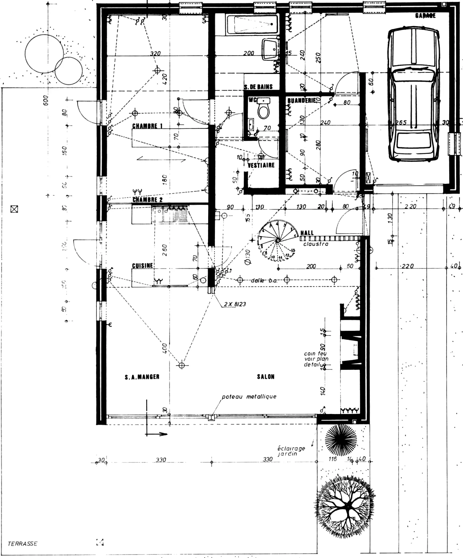
L'histoire commence par la rencontre d'un jeune couple et d'un architecte, le premier désireux d'édifier sa maison sur une parcelle rurale de 15 a, le second soucieux de produire une architecture de qualité accessible à tous. Les premiers échanges passés, l'architecte Van Eecke propose un bâtiment aux lignes simples, dont le plan sera à même de suivre les évolutions de la famille. Son implantation 30 m derrière la limite cadastrale garantit à la construction un ensoleillement optimal, tout en la préservant du regard des passants  Son couronnement par une toiture à double versant répond au contexte rural, sans empêcher la facture moderne. Sa volumétrie élémentaire et, peut-être plus encore, ses matériaux (maçonnerie de blocs Ytong et baies en aluminium anodisé) témoignent de son époque de conception. Réalisé en un budget record (329 250 francs, soit 57 000 euros environ), le projet bénéficiera d'une parution au sein d'une revue d'architecture vantant les mérites d'une « architecture discrète, abordable, et non moins qualitative ».

Charlotte Lheureux

Sources
Je vais construire, n° 29, mai-juin, 1977, p.9-37.