Ferme du Beauregard

Ateliers d'artistes Centre d'exposition

2009 - 2012 2009 - 2012
Réalisé

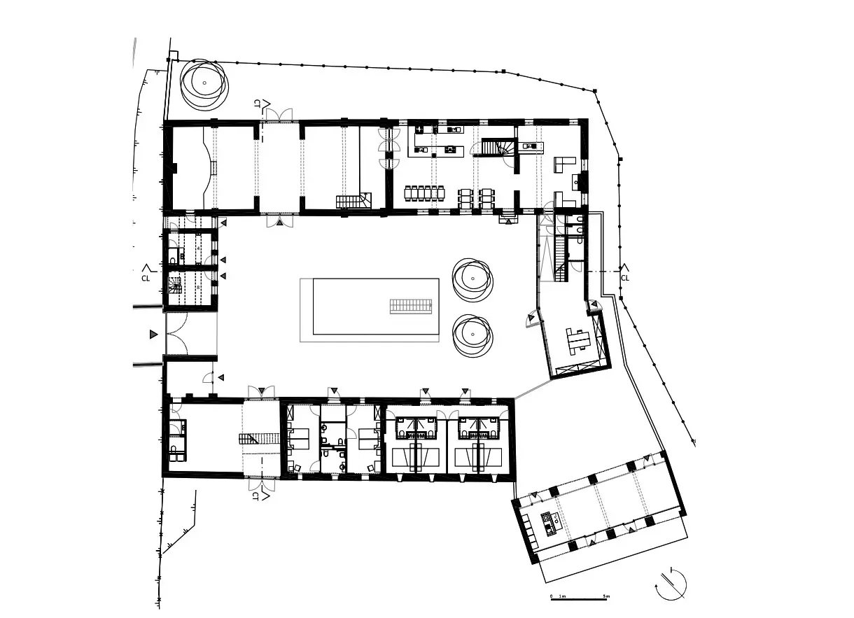
L'ancienne ferme (1773) menaçant de s'effondrer, un projet social et culturel lui donne une nouvelle vie. Les anciens locaux sont transformés en salle de spectacle ou d'exposition (grange), salle à manger, cuisine et bar (logis), gîte autonome et chambres (étables), ateliers avec dortoir et coin lecture (étages), espace de séminaire. Cette mutation est pensée pour correspondre aux principes de la Charte de Venise, avec « une grande attention à la réversibilité de nos interventions », précise Arcadus. « La plupart des aménagements et dispositifs techniques mis en place peuvent être démontés à tout moment sans endommager ou dénaturer les éléments authentiques existants. » La section administrative devait occuper le fournil, mais celui-ci s'est effondré durant le chantier. De ce fait, Arcadus a conçu un nouveau bâtiment de gabarit et de forme identiques, « mais d'une matérialité contemporaine en bois ajouré ». Plus qu'une touche, ce choix donne son caractère à la transformation.

Jacky Legge

Sources
Archives d'Arcadus Architecte.
Année Prix Distinction
2014 Prix Pasquier Grenier lauréat
2015 Grand Prix d'Architecture de Wallonie lauréat (prix spécial du Patrimoine)