Maison Jeudy

Habitation unifamiliale

1979 - 1981 1979 - 1981
Réalisé

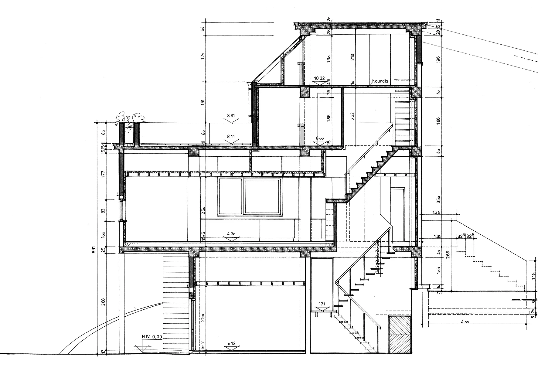
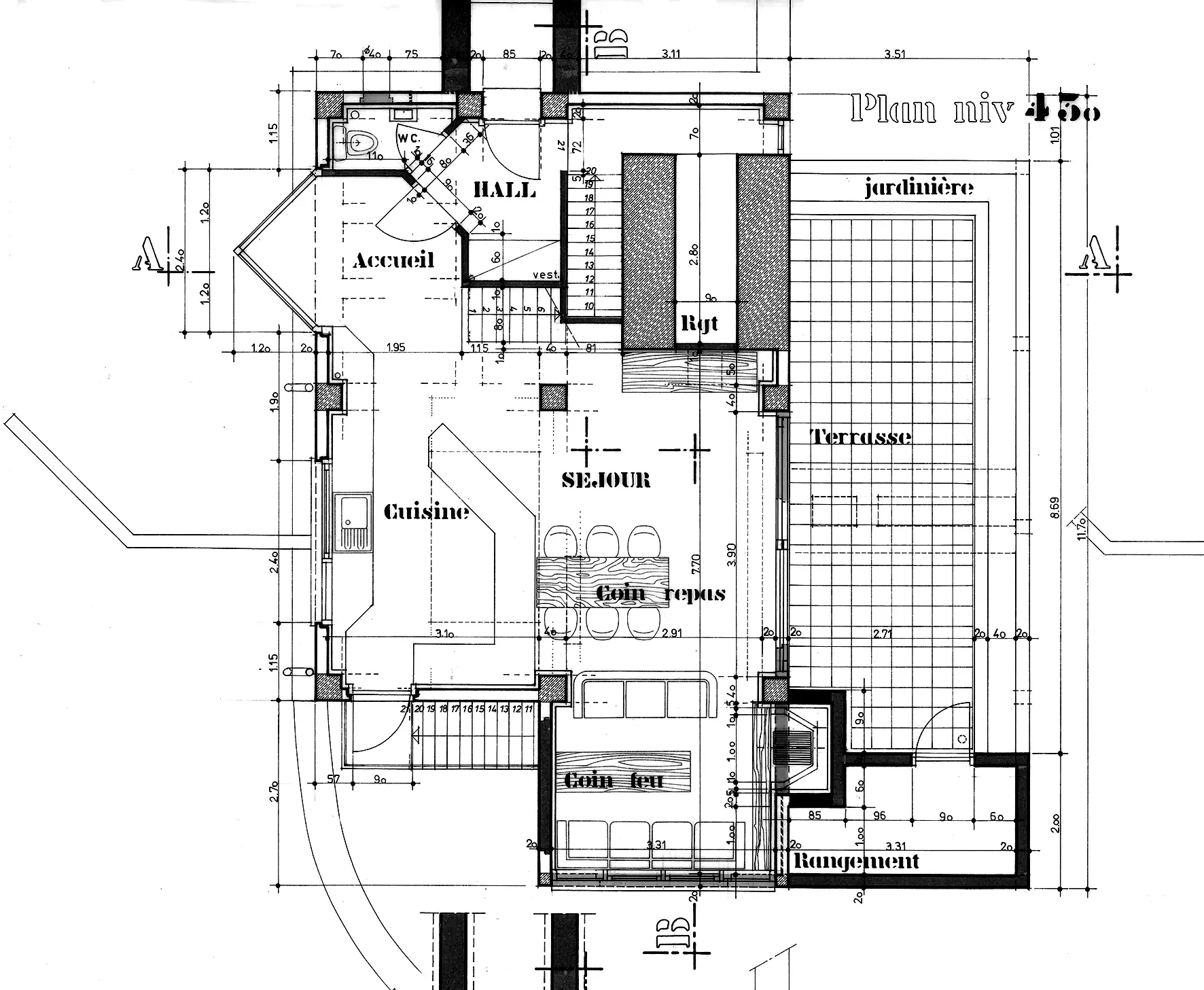
À l'initiative de ce projet, un jeune couple désireux de créer de l'espace et de la lumière à partir d'un lieu existant où tout serait encore possible. Ce lieu, il le trouve dans la carrière de Chercq, au sein d'un ancien concasseur de pierres. De l'infrastructure, dont l'activité a cessé depuis longtemps, reste la carcasse de béton et de briques, ainsi que la rampe de circulation des wagonnets. La structure (dont les poutres béton présentent une section de 1 x 0,80 m) s'érige sur 12 m de haut, découpés en cinq plateaux. L'ensemble du gros œuvre est là, rien n'est à démolir. L'intervention de l'architecte s'avère minimale : il s'agit d'organiser intelligemment le programme au sein d'un volume peu pratique à l'usage. Ce à quoi répond le projet, sans modification de l'apparence extérieure. Le séjour occupe l'étage central et profite d'une vaste terrasse ouverte sur le paysage alentour. Les niveaux inférieurs reçoivent les techniques ; les niveaux supérieurs reçoivent les chambres. Le confort des occupants est assuré par un chauffage pulsé en faux plafonds et par une isolation intérieure, complétée par une pompe à chaleur air-air pour la transformation d'énergie.

Charlotte Lheureux

Sources
Gabriel J.-P., «Du béton et des fleurs» dans Le Vif L'Express, n° 111, 4 avril, 1985.
Archives d'André Béghin.