Thudinie Academy & golf Club

Clubs de golf

2006 - 2011 2006 - 2011
Réalisé

Faisant face, d'un côté, aux volumes imposants de la distillerie de Biercée, et de l'autre, à une vaste étendue végétale, un parallélépipède rectangle de faible hauteur s'inscrit délicatement dans un paysage agricole. 

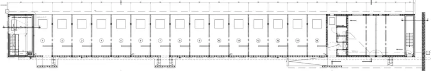
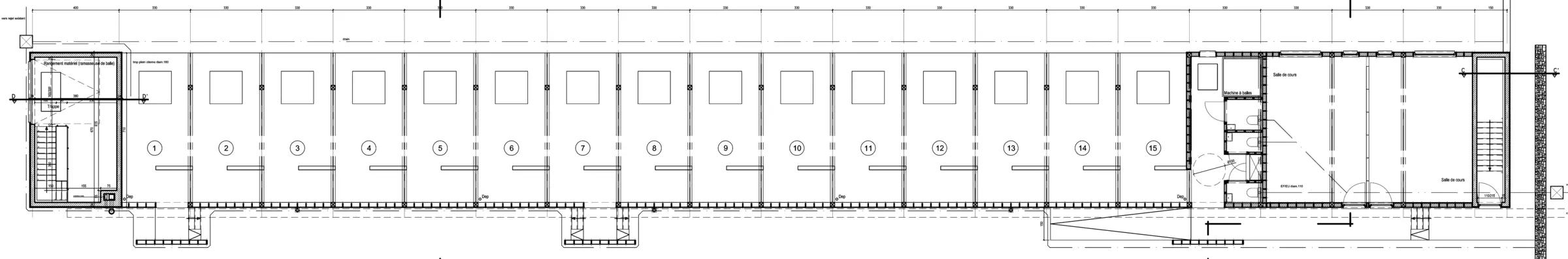
En recul de la voirie, celui-ci reprend le practice couvert. Le bardage en cèdre est posé horizontalement afin d'accentuer la longueur et la pureté du bâtiment. 

Côté « ferme de la cour », la façade est relativement fermée et monolithique. Côté « practice », elle est ouverte et creusée pour abriter les joueurs. La structure répétitive en bois complète la sobriété de l'élévation, tout en rappelant la typologie des hangars à foin. 

La conception du green se veut riche en technicités et respectueuse du site et de son environnement, implanté sur une surface de 50 ha.

Jeremy Cenci et Isabelle de Smet

Sources
Parcours au travers des patrimoines, 2013.