Pavillon forestier

Équipement forestier

2004 - 2004 2004 - 2004 2004 - 2004
Réalisé

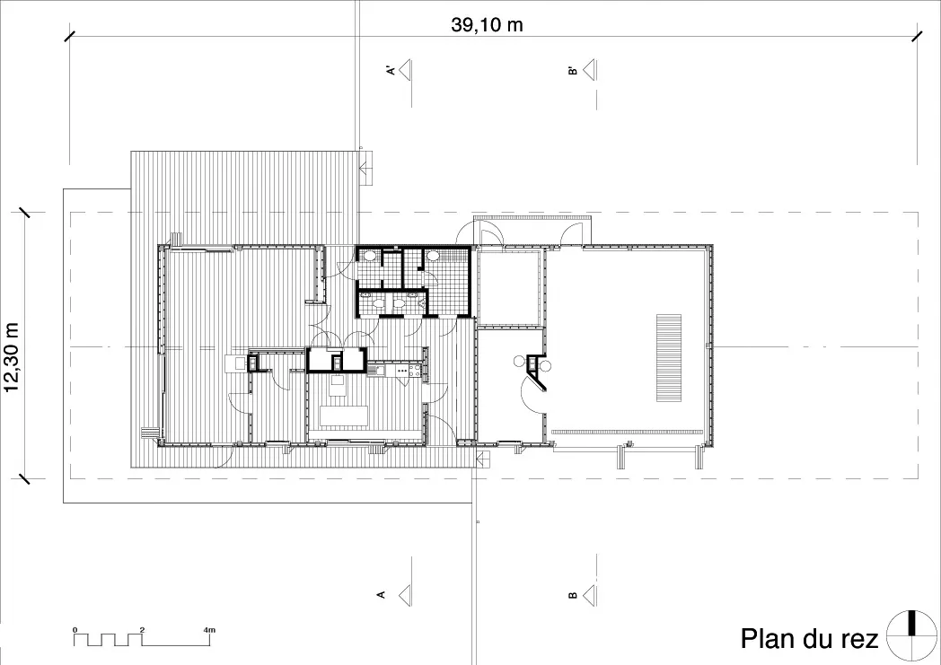
Sur un socle en béton, une boîte sombre, survolée d'une vaste toiture à double pente, dévoile, lorsque portes et volets s'ouvrent, les faces claires de ses parois intérieures. Pour assurer l'effet de continuité de la façade, la finition des parois mobiles est identique à celle des parois fixes. Lorsque le volume est ouvert, les parois lisses des surfaces vitrées ourlées de bois clair reflètent les tonalités de l'environnement boisé. Ingénieur civil architecte, Daniel Dethier fait ici preuve de grande ingéniosité dans la conception de la charpente en « arêtes de poisson » qui rend la présence de colonnes ou de poutres inutile et permet le déploiement de l'important auvent en porte-à-faux. Sans chéneau, la couverture en cuivre présente à sa base un profil filaire qui laisse goutter les eaux de pluie que de larges débordements rejettent loin du bâtiment. Sous le toit, dans la boîte, un espace intérieur de 420 m² propose différentes fonctions, pouvant accueillir tant des chasseurs, des gardes forestiers que des scientifiques. On y trouve une salle de réunion, une chambre froide, un laboratoire, un garage avec une fosse pour l'entretien des véhicules, des locaux de services et, sous l'auvent, une aire de rangement pour le matériel agricole. Chaque espace intérieur est chauffé par un poêle à bois et de grands conduits de cheminée en métal se dressent dans le vide sous toiture pour évacuer les fumées.

(voir : Observatoire à Priesse ; Observatoire des étangs de Bilaude)

Joëlle Houdé

Sources
«Pavillon forestier Saint-Hubert» sur le site Dethier Architecture, en ligne https://www.dethier.be/fr/projets/pavillon-forestier-saint-hubert, consulté le 11/08/2022.
«L'architecture en bois en Région wallonne et alentours» dans Bois et Habitat, Carnet de route, n° 7, Chaumont-Gistoux, 2005, p.50.
Willaert Philip, «Architecture de hangar» dans A+, n° 196, octobre-novembre, 2005, p.80-81.