Espace culturel Victor Jara
Place, esplanade ou square Centres culturels
2005 - 2009
2005 - 2009
2005 - 2009
2005 - 2009
2005 - 2009
2005 - 2009
Réalisé
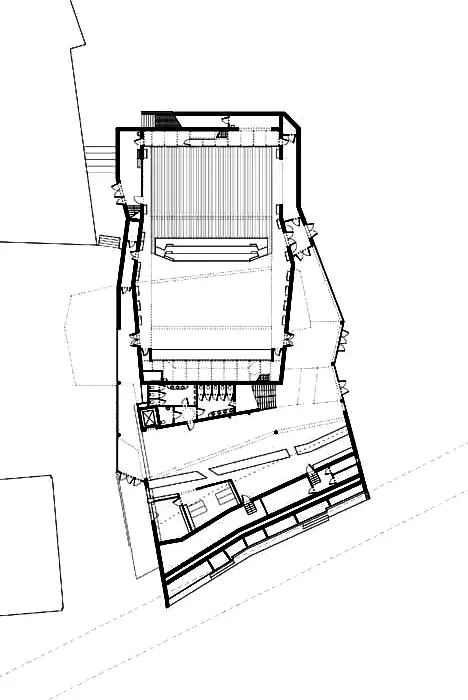
L'espace Victor Jara est situé au cœur du centre historique de Soignies, à deux pas de l'imposante collégiale Saint-Vincent datant du XIIe siècle qui domine la ville et les campagnes alentour. Les carrières d'extraction de pierre bleue ont façonné la région et sa mémoire. La présence invisible de la Senne en bordure de site a dessiné les formes urbaines.
Ce projet est pensé alors comme une topographie rocheuse surgissant du sol. Le bâtiment présente, dans sa morphologie, deux versants d'une dynamique culturelle urbaine : la salle intérieure, avec une capacité de quatre cents places assises et six cents places debout, accueille tant la création que la diffusion de spectacles de danse, de théâtre, de concerts de musique, etc., et les gradins et déambulatoires extérieurs sont les supports de fêtes et d'événements de rue et de promenades.
Le projet propose ainsi une interprétation très urbaine de la notion de spectacle, en permettant au public de s'approprier le bâtiment selon des modes multiples, même lorsqu'il est fermé. En réduisant la zone d'implantation du bâtiment, une nouvelle petite place est dégagée à côté du projet. Le choix d'ouvrir largement l'îlot et d'y faire entrer l'espace public se retrouve dans l'utilisation des gradins et promenades extérieurs : tous ces éléments sont des catalyseurs, des multiplicateurs d'espace urbain. Les gradins extérieurs effacent la façade frontale du bâtiment et dégagent la vue de la place Van Zeeland vers la collégiale en créant un nouvel espace marqué par l'intervention de la plasticienne Domitienne Cuvelier.
La géométrie du bâtiment est ainsi définie par le dessin des espaces résiduels qui l'entourent et des séquences visuelles qui les relient. C'est la raison même de sa géométrie toute en angles irréguliers, suivant au plus près la trame médiévale du tissu urbain. Ces enchaînements d'espaces extérieurs se prolongent dans les foyers intérieurs du bâtiment par le biais de multiples entrées, ce qui accentue l'ouverture de ce lieu de culture.
À l'intérieur, la salle est habillée de boiseries sombres jouant le rôle de correcteurs acoustiques, tandis que les baies en réglite renvoient la lumière des foyers et transforment le bâtiment en écrin de lumière à la tombée de la nuit.
Maurizio Cohen
| Sources |
|---|
| Doutriaux E., «Cultural centre in Soignies, Belgium» dans Domus, n° 932, janvier, 2010, p.59-64. |
| Guyaux Marie-Cécile, «Des scènes et des acteurs» dans A+, n° 221, décembre, 2009, p.40-45. |
| Cohen Maurizio, «Multifonctional hall, Soignies» dans A10, n° 29, septembre-octobre, 2009, p.40-45. |
| Archives de l'Escaut Architectures : Dossier Centre Victor Jara. |
| Van Gerrewey Christophe, «Centre culturel Victor Jara. L'Escaut Architectures/Bureau d'études Weinand» dans A+, n° 232, octobre - novembre, 2011, p.70. |
| Devoldere Stefan, «La maîtrise d'ouvrage publique en communauté française. Interview de Chantal Dassonville.» dans A+, n° 200, juin-juillet, 2006, p.40-46. |