Maison VG
Habitation unifamiliale
2006 - 2010
2006 - 2010
2006 - 2010
2006 - 2010
2006 - 2010
Réalisé
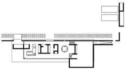
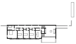
Le terrain, relativement plat et de grande taille, se situe plein sud et face aux champs, à plus ou moins 5 m au-dessus du niveau de la rue. Afin de répondre aux contraintes économique, technologique et, surtout, écologique, le projet a fait l'objet de plusieurs dérogations aux prescriptions urbanistiques.
L'analyse du site conduit les architectes à concevoir le projet en longueur, selon un axe est-ouest, matérialisé par un long voile en béton où se pose une boîte légère, recouverte d'un bardage en bois, dans laquelle se trouve l'espace nuit de l'habitation.
En porte-à-faux par rapport au rez-de-chaussée, l'étage permet de réguler l'apport de lumière et de la chaleur naturelle au gré des saisons : l'espace de vie, largement ouvert sur l'extérieur, bénéficie du soleil direct en automne et en hiver. L'accès entre ces deux niveaux se fait grâce à un escalier à double volée, présentant, en guise de palier, un espace de détente qui surplombe le paysage.
Henri Henin
| Sources |
|---|
| Carnet de route, larchitecture en bois : Région wallonne et alentours, tome 4. |